Pas de appartement à Sourdun pour le moment. Découvrez dès maintenant les appartements dans le département Seine-et-Marne.
Bénéficiez des services de nos partenaires locaux soigneusement sélectionnés
pour vous accompagner dans votre parcours d'achat immobilier

Appartement t2 vue mer - aytre

— Aytre 17440 —
265 000 €
44 m²
2 pièces
parkingbalcon/terrasse

Nos partenaires locaux
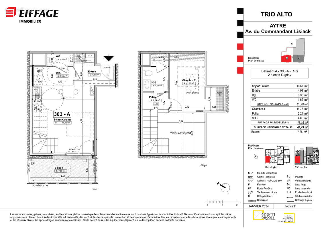
A vendre dans votre Agence Welcome To Immo, ce bel appartement neuf Type T2 en DUPLEX avec vue mer à Aytré.
Proche du centre ville d'Aytré, il bénéficie d'une situation privilégiée proche des commerces et dans un programme immobilier neuf conçu de façon atypique et soignée alternant bardages métalliques et touches de bois naturel.
Ce duplex de Type 2 d'une surface de 44,49 m2 dispose d'une entrée, d'une belle pièce de vie avec cuisine donnant sur un balcon orienté Sud Ouest (vue Mer) d'une chambre, d'une salle d'eau et d'un WC.
De plus vous bénéfierez d'une place de parking.
Contacter notre agence WELCOME TO IMMO pour une visite au [Coordonnées masquées] Contactez nous au [Coordonnées masquées] ou par mail à [Coordonnées masquées]
Voir plus

Bien en copropriété.
Barème des honoraires

Prêt immobilier

Vous souhaitez connaître votre capacité d’emprunt et trouver le meilleur crédit immobilier ?
Réaliser une simulation gratuite

Appartement à AYTRE
Appartement à AYTRE
Appartement à AYTRE
Appartement à AYTRE
Ce site est protégé par reCAPTCHA la Politique de confidentialité et les Conditions d’utilisation de Google s’appliquent.
Obtenir un prêt immobilier au meilleur taux ?

En poursuivant votre navigation sans modifier vos paramètres, vous acceptez l'utilisation de cookies susceptibles de réaliser des statistiques de visite. Cliquez ici pour plus d'informations