Bénéficiez des services de nos partenaires locaux soigneusement sélectionnés
pour vous accompagner dans votre parcours d'achat immobilier

Appartement a renover - sept deniers

— Toulouse 31200 —
310 000 €
77 m²
4 pièces

Nos partenaires locaux
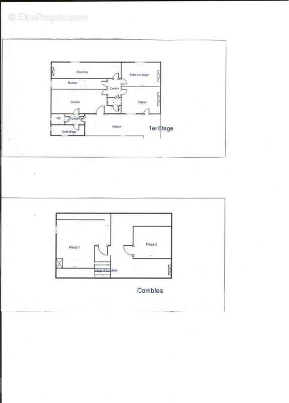
Toulouse, Sept Deniers, au coeur du quartier, appartement traversant, à rénover, au 1er étage d'un immeuble ancien. Cet appartement de 78 m2 habitables dispose en plus de 30 m2 de combles et d'un jardin de 745 m2 avec dépendance. Prévoir travaux. Prix de Vente : 310 000 €uros H.A.I Honoraires à la charge du vendeur. Estimation des coûts annuels d'énergie du logement entre 1440 et 2000 euros. DPE établi le 22/01/2023. Tarif énergie au 01-01-2021. Les informations sur les risques auxquels ce bien est exposé sont disponibles sur le site Géorisques.
Voir plus

Référence: 1023
Honoraires à la charge du vendeur.
Barème des honoraires
DPE
A
B
C
D
E
F
G
GES
A
B
C
D
E
F
G

Prêt immobilier

Vous souhaitez connaître votre capacité d’emprunt et trouver le meilleur crédit immobilier ?
Réaliser une simulation gratuite

Appartement à TOULOUSE
Appartement à TOULOUSE
Appartement à TOULOUSE
Appartement à TOULOUSE
Appartement à TOULOUSE
Appartement à TOULOUSE
Ce site est protégé par reCAPTCHA la Politique de confidentialité et les Conditions d’utilisation de Google s’appliquent.
Obtenir un prêt immobilier au meilleur taux ?

En poursuivant votre navigation sans modifier vos paramètres, vous acceptez l'utilisation de cookies susceptibles de réaliser des statistiques de visite. Cliquez ici pour plus d'informations