Pas de maison à La Chapelle pour le moment. Découvrez dès maintenant les maisons dans le département Allier.
Bénéficiez des services de nos partenaires locaux soigneusement sélectionnés
pour vous accompagner dans votre parcours d'achat immobilier

Ingwiller (67) - maison bourgeoise 284m² sur 87.80 ares (dont 60 constructibles)

— Ingwiller 67340 —
467 100 €
284 m² / 8 780 m²
10 pièces
jardin

Nos partenaires locaux
COMPROMIS EN COURS...Visites suspendues...

Laissez vous charmer par cette magnifique demeure édifiée en 1965 sur un terrain de près de 88 ares (dont plus de 60 ares constructibles : zonage UB) à proximité de toutes les commodités. (gare, commerces, écoles, etc)

L'agréable impression d'espace et le style bourgeois, précursseur pour son époque, sont accentués notamment par son vaste hall d'accueil de 33m², sa pièce de vie de près de 50m² et ses ouvertures donnant sur un magnifique parc (avec partie boisée)

Cette maison de Maître à rénover vous offre près de 284m² sur deux niveaux, comprenant au rez-de-chaussée, un hall d'entrée avec son magnifique escalier en bois, une belle salle à manger et un salon avec sa cheminée avec plusieurs accès sur la terrasse, une chambre à coucher, une vaste cuisine (avec un vrai cellier) ayant également accès à la terrasse, un WC séparé ainsi qu'un grand bureau.

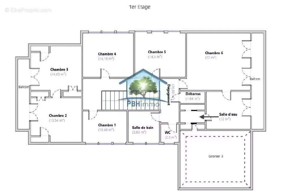
Le premier étage comporte un dégagement, 5/6 chambres à coucher dont 2 avec balcon et une vraie chambre parentale avec salle d'eau privative, balcon et dressing ainsi qu'une salle de bain et un WC.

Pour compléter ce bien, nous avons une cave complète (environ 130m²), une cour, un grand garage.

Cette propriété de charme est idéalement située dans un environnement arboré, verdoyant et paisible avec un accès facile à la ville.

Pour votre confort, le logement bénéficie du chauffage centralisé avec radiateurs en fonte.

Prix FAI : 467 100 Euros. (honoraires d'agence inclus, à la charge de l'acquéreur pour limiter les frais de notaire)

Un RDV en agence pourra être demandé avant de visiter ce bien d'exception.

Une question ? Contactez votre interlocuteur unique chez PBH IMMO pour cette belle affaire en exclusivité : Philippe FIRN, responsable régional, négociateur salarié au [Coordonnées masquées] ou [Coordonnées masquées].

Visites en Visio possible sur demande.

Pour tous vos projets immobiliers RDV dans l'une de nos 4 agences locales en ALSACE DU NORD, OBERMODERN, 51a rue de la Moder, HAGUENAU, 214a Grand Rue (Porte de Wissembourg), INGWILLER, 52 rue Maréchal Foch et à MERTZWILLER, 21 rue de la Liberté


Découvrez toutes nos nouveautés en avant-première sur notre page Facebook "PBH IMMO Alsace Moselle"
Voir plus

Référence: 7360
DPE
A
B
C
D
E
F
G
GES
A
B
C
D
E
F
G

Prêt immobilier

Vous souhaitez connaître votre capacité d’emprunt et trouver le meilleur crédit immobilier ?
Réaliser une simulation gratuite

Maison à INGWILLER
Maison à INGWILLER
Maison à INGWILLER
Maison à INGWILLER
Maison à INGWILLER
Maison à INGWILLER
Maison à INGWILLER
Maison à INGWILLER
Maison à INGWILLER
Maison à INGWILLER
Maison à INGWILLER
Maison à INGWILLER
Maison à INGWILLER
Maison à INGWILLER
Maison à INGWILLER
Maison à INGWILLER
Maison à INGWILLER
Maison à INGWILLER
Maison à INGWILLER
Maison à INGWILLER
Ce site est protégé par reCAPTCHA la Politique de confidentialité et les Conditions d’utilisation de Google s’appliquent.
Obtenir un prêt immobilier au meilleur taux ?

En poursuivant votre navigation sans modifier vos paramètres, vous acceptez l'utilisation de cookies susceptibles de réaliser des statistiques de visite. Cliquez ici pour plus d'informations