Bénéficiez des services de nos partenaires locaux soigneusement sélectionnés
pour vous accompagner dans votre parcours d'achat immobilier

Ancienne bastide rénovée

— Draguignan 83300 —
990 000 €
240 m² / 3 262 m²
6 pièces
parkingjardin

Nos partenaires locaux
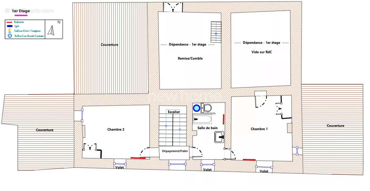
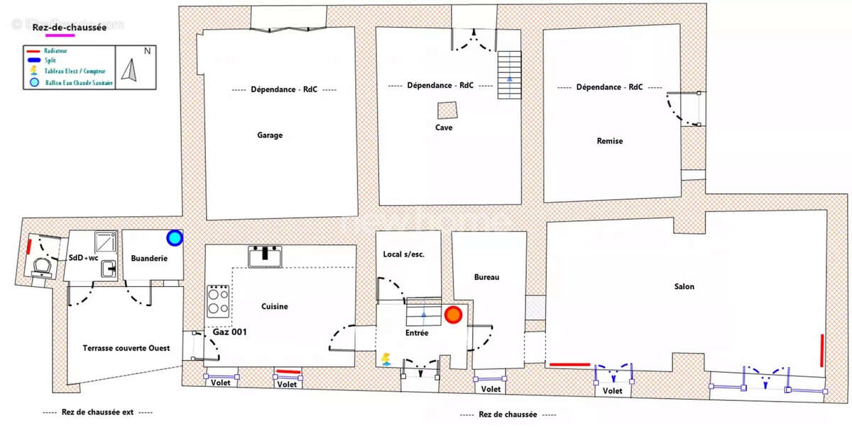
Découvrez cette superbe bastide ancienne située dans un quartier résidentiel paisible de Draguignan. Entièrement rénovée en 2018, cette propriété d'environ 230 m2 habitables allie charme et authenticité. Elle offre également un potentiel d'aménagement supplémentaire d'environ 120 m2, le tout sur une belle parcelle de 3262 m2. Au rez-de-chaussée, vous trouverez une entrée accueillante, une vaste cuisine moderne ouvrant sur une terrasse couverte équipée d'une buanderie, une salle d'eau et des toilettes. Le spacieux séjour est orné d'une grande baie en fer forgé, inondant la pièce de lumière. Le premier étage comprend un premier espace nuit avec deux très grandes chambres, une salle de bain élégante et des toilettes. Au deuxième étage, une suite parentale avec salle d'eau et toilettes privées, une autre chambre spacieuse, et une chambre d'enfant confortable vous attendent. L'extérieur de la bastide est tout aussi enchanteur avec un espace piscine privé, entouré d'oliviers et de restanques en pierres, offrant intimité et tranquillité. Les majestueux arbres sur la propriété apportent ombre et fraîcheur durant les étés provençaux. De plus, un puits, une source naturelle et un terrain de pétanque ajoutent à l'attrait unique de cette demeure. Cette bastide rare et élégante est une opportunité exceptionnelle pour ceux en quête de charme, d'authenticité et de vastes espaces. Ne manquez pas la chance de visiter cette propriété unique qui saura vous séduire par ses atouts incomparables.
Voir plus

Référence: 1793
Barème des honoraires
DPE
A
B
C
D
E
F
G
GES
A
B
C
D
E
F
G

Prêt immobilier

Vous souhaitez connaître votre capacité d’emprunt et trouver le meilleur crédit immobilier ?
Réaliser une simulation gratuite

Maison à DRAGUIGNAN
Maison à DRAGUIGNAN
Maison à DRAGUIGNAN
Maison à DRAGUIGNAN
Maison à DRAGUIGNAN
Maison à DRAGUIGNAN
Maison à DRAGUIGNAN
Maison à DRAGUIGNAN
Maison à DRAGUIGNAN
Maison à DRAGUIGNAN
Maison à DRAGUIGNAN
Maison à DRAGUIGNAN
Maison à DRAGUIGNAN
Maison à DRAGUIGNAN
Maison à DRAGUIGNAN
Maison à DRAGUIGNAN
Maison à DRAGUIGNAN
Maison à DRAGUIGNAN
Maison à DRAGUIGNAN
Maison à DRAGUIGNAN
Maison à DRAGUIGNAN
Maison à DRAGUIGNAN
Maison à DRAGUIGNAN
Maison à DRAGUIGNAN
Maison à DRAGUIGNAN
Maison à DRAGUIGNAN
Maison à DRAGUIGNAN
Maison à DRAGUIGNAN
Maison à DRAGUIGNAN
Maison à DRAGUIGNAN
Maison à DRAGUIGNAN
Maison à DRAGUIGNAN
Maison à DRAGUIGNAN
Maison à DRAGUIGNAN
Maison à DRAGUIGNAN
Maison à DRAGUIGNAN
Maison à DRAGUIGNAN
Maison à DRAGUIGNAN
Maison à DRAGUIGNAN
Maison à DRAGUIGNAN
Maison à DRAGUIGNAN
Maison à DRAGUIGNAN
Ce site est protégé par reCAPTCHA la Politique de confidentialité et les Conditions d’utilisation de Google s’appliquent.
Obtenir un prêt immobilier au meilleur taux ?

En poursuivant votre navigation sans modifier vos paramètres, vous acceptez l'utilisation de cookies susceptibles de réaliser des statistiques de visite. Cliquez ici pour plus d'informations