Bénéficiez des services de nos partenaires locaux soigneusement sélectionnés
pour vous accompagner dans votre parcours d'achat immobilier

Frais de notaire offerts ! vente t3 porticcio

— Pietrosella 20166 —
351 000 €
54 m²
3 pièces
parkingbalcon/terrasse

Nos partenaires locaux
FRAIS DE NOTAIRE OFFERTS !
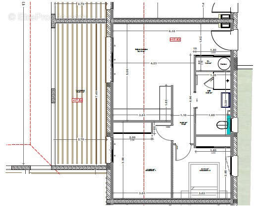
L'agence SCAGLIA Immo vous propose cet appartement de type 3 de 54 m2 avec 20 m2 de terrasse, à la sortie de Porticcio, à 2 minutes des commerces et administrations.
Situé au premier et dernier étage d'une résidence composée de 7 appartements. Places de parking extérieures. Belles prestations. Actabilité immédiate.Garantie décennale. Livraison immédiate.
Contact : Agence SCAGLIA Immo - 512, boulevard Marie-Jeanne BOZZI - 20166 PORTICCIO. Les informations sur les risques auxquels ce bien est exposé sont disponibles sur le site Géorisques : www.georisques.gouv.fr
Voir plus

Référence: 2055
Bien en copropriété. Nombre de lots : 16.
Honoraires à la charge du vendeur.
Barème des honoraires

Prêt immobilier

Vous souhaitez connaître votre capacité d’emprunt et trouver le meilleur crédit immobilier ?
Réaliser une simulation gratuite

Appartement à PIETROSELLA
Appartement à PIETROSELLA
Appartement à PIETROSELLA
Appartement à PIETROSELLA
Appartement à PIETROSELLA
Ce site est protégé par reCAPTCHA la Politique de confidentialité et les Conditions d’utilisation de Google s’appliquent.
Obtenir un prêt immobilier au meilleur taux ?

En poursuivant votre navigation sans modifier vos paramètres, vous acceptez l'utilisation de cookies susceptibles de réaliser des statistiques de visite. Cliquez ici pour plus d'informations