Bénéficiez des services de nos partenaires locaux soigneusement sélectionnés
pour vous accompagner dans votre parcours d'achat immobilier

Voir tous les partenaires locaux

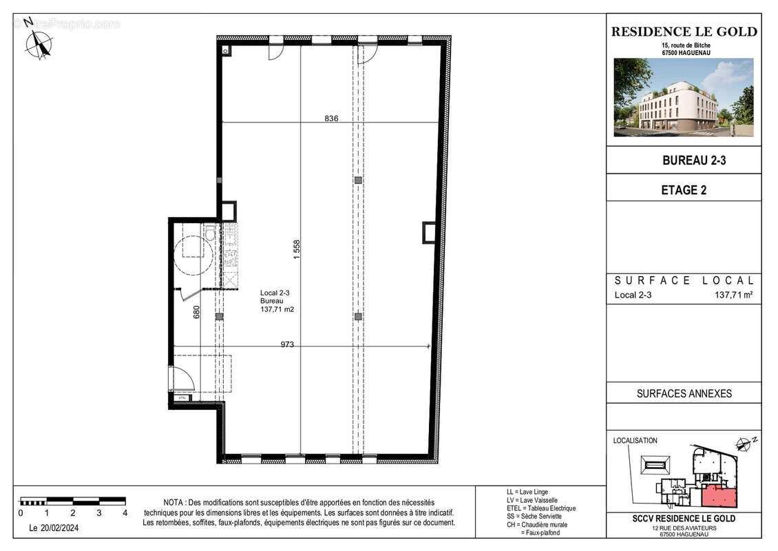
Local pro neuf - bureau - 137,71m2

— Haguenau 67500 —
433 786 €
138 m²

Nos partenaires locaux
À vendre : Local professionnel neuf à Haguenau

Emplacement privilégié : Situé sur l'axe stratégique de la route de Bitche, ce local se trouve au 2ème étage d’un immeuble à usage mixte, offrant une visibilité optimale. Vous serez à quelques pas du centre-ville, de la gare et des principaux axes autoroutiers, facilitant ainsi l'accès à votre clientèle et à vos collaborateurs.

Caractéristiques du bien :

Superficie : 137,71 m2, idéale pour diverses activités professionnelles.
État : Le local est livré prêt à l’emploi, avec des finitions de qualité, hors cloisonnement selon les spécifications techniques fournies par le promoteur, vous permettant de personnaliser l’espace selon vos besoins.
Accessibilité : Conforme aux normes de mobilité réduite (P.M.R.), garantissant un accès facile à tous vos clients.

Prestations haut de gamme :

Fenêtres en triple vitrage : Design anthracite à l’extérieur et blanc à l’intérieur, offrant une excellente isolation thermique et acoustique.
Visiophone : Pour un contrôle d'accès pratique et sécurisé.
Choix de carrelage : Sélectionnez votre carrelage chez Matériaux SIEHR, avec des options jusqu'à 60 x 60 cm pour les sanitaires, et dalles moquettes dans les bureaux.
Sanitaires modernes : WC suspendus avec plaque de commande GROHE et équipements sanitaires de haute qualité.
Sécurité renforcée : Porte palière italienne DESIGN avec 3 points de sécurité.
Ascenseur : Accès facile à tous les étages de l'immeuble.
Esthétique extérieure : Pierres de parements sur certaines façades, ajoutant une touche contemporaine et élégante.
Stationnements extérieurs : Emplacements réservés pour vos bureaux, facilitant l'accès pour vos clients et employés.
Climatisation réversible : Pour un confort optimal tout au long de l'année. (Pompe à chaleur air/air avec compteur calorifique individuel)

Atouts majeurs :

Immeuble neuf : Bénéficiez d'un environnement moderne avec des finitions soignées et une architecture contemporaine qui reflète une image dynamique et professionnelle.
Cadre de travail exceptionnel : Profitez d'un espace lumineux et convivial, propice à la productivité et à la créativité.

Options supplémentaires : Si vous avez besoin de plus d'espace, d'autres surfaces allant jusqu'à 361,00 m2 par niveau sont également disponibles, vous permettant d’envisager une extension future de vos activités.

Conditions : Les délais de livraison peuvent être convenus selon vos besoins spécifiques. ( 1er Semestre 2026 )

Pour toute demande d’information complémentaire ou pour organiser une visite, n’hésitez pas à nous contacter. C’est une opportunité à ne pas manquer pour établir votre activité dans un cadre de qualité à Haguenau !
Voir plus

Barème des honoraires

Prêt immobilier

Vous souhaitez connaître votre capacité d’emprunt et trouver le meilleur crédit immobilier ?
Réaliser une simulation gratuite

Commerce à HAGUENAU
Commerce à HAGUENAU
Commerce à HAGUENAU
Commerce à HAGUENAU
Ce site est protégé par reCAPTCHA la Politique de confidentialité et les Conditions d’utilisation de Google s’appliquent.
Obtenir un prêt immobilier au meilleur taux ?

En poursuivant votre navigation sans modifier vos paramètres, vous acceptez l'utilisation de cookies susceptibles de réaliser des statistiques de visite. Cliquez ici pour plus d'informations