Bénéficiez des services de nos partenaires locaux soigneusement sélectionnés
pour vous accompagner dans votre parcours d'achat immobilier

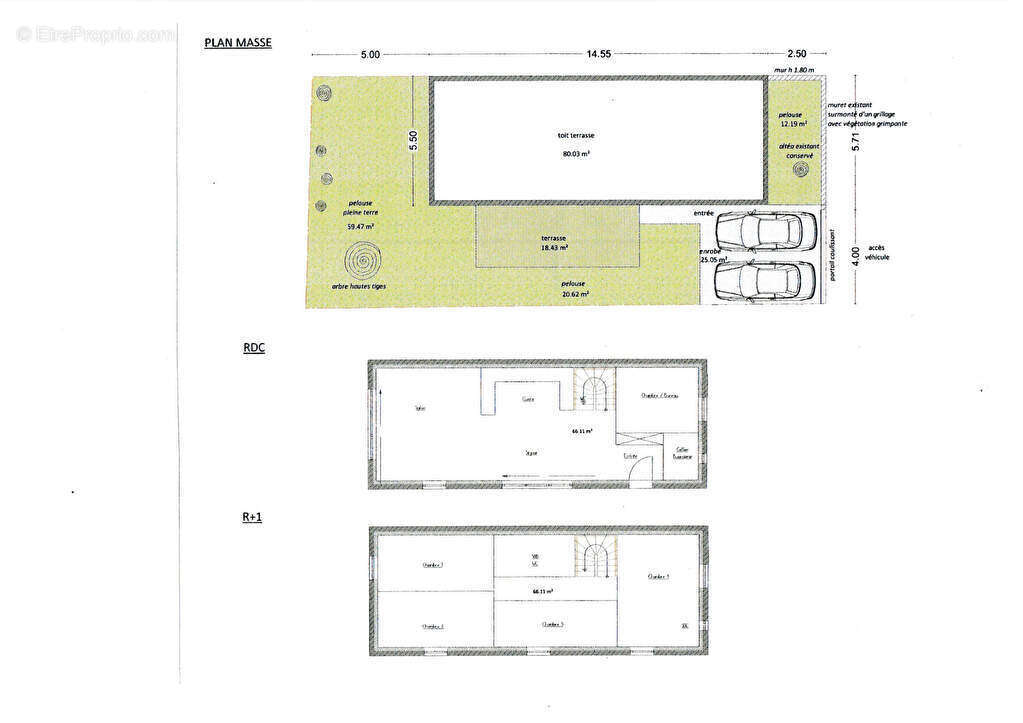
Projet construction villeurbanne 219 m2 vendu avec pc purgé des tiers

— Villeurbanne 69100 —
409 500 €
132 m² / 219 m²
6 pièces
jardin

Nos partenaires locaux
BIEN RARE : maison avec jardin en ville à construire ! Libre constructeur. Sur parcelle de 219 m2 secteur calme et résidentiel de VILLEURBANNE (quartier très bien côté des Poulettes). Vendu avec permis de construire purgé des tiers. Joli terrain plat, viabilisé, bien arboré pour un projet de construction de 132 M2 habitables sur 2 niveaux : 66,11m2 par étage 5 chambres TERRASSE ET JARDIN. 2 PLACES DE PARKING PRIVE. A 15 min à pied du métro Gratte-Ciel (1,2 km) ? A 5 min à pied de l'avenue Roger Salengro (400 m). FUTUR PROLONGEMENT DU TRAMWAY T6 à 5 min à pied ! Sur la rue Perroncel et l'avenue Salengro. Le prix inclut la vente du terrain avec transfert de permis de construire purgé des tiers. Le prix n'inclut pas les taxes d'aménagement et d'archéologie préventive qui seront à rembourser au vendeur (2 549 euros). La construction de la maison est à la charge de l'acquéreur (prévoir 1500 à 2000 euros du m2 - tout dépend des prestations choisies). Par exemple, si prix de construction à 1 750 euros du m2, cela représente un projet terrain + maison à 696 500 euros. Détail du calcul : 469 000 euros (prix terrain avec PC purgé) + 227 500 euros (si 1750 euros / m2 pour la construction sur 130 m2). Hors frais annexes (frais d'acquisition, etc?). Information non contractuelle. Les avantages de ce projet : 1/ le permis est déjà obtenu, sans délai, la maison est donc prête à être construite ! 2/ une maison neuve donc aucuns travaux à prévoir avant longtemps. 3/ une maison agencée selon vos envies et avec les matériaux que vous choisissez ! 4/ Une extension d'un niveau supplémentaire est possible mais n'est pas incluse dans le permis actuel. Une valorisation à venir pour l'acquéreur... 5/ Frais de notaire ne seront à payer que sur le foncier (terrain à bâtir et non la construction à venir). Prévoir aussi 15 000 euros pour démolition petite maison en place sur terrain (devis disponible). Photos non contractuelles. A noter aussi : une cave actuelle de 20 à 30 m2 qui pourrait donc être gardée puisque déjà creusée. Pour toute information complémentaire, contactez Arnaud Mieusset au [Coordonnées masquées] ou l'agence Stéphane Plaza Immobilier Lyon 9 au [Coordonnées masquées].
Voir plus

Référence: 71
Honoraires à la charge du vendeur.
Barème des honoraires

Prêt immobilier

Vous souhaitez connaître votre capacité d’emprunt et trouver le meilleur crédit immobilier ?
Réaliser une simulation gratuite

Maison à VILLEURBANNE
Maison à VILLEURBANNE
Maison à VILLEURBANNE
Maison à VILLEURBANNE
Maison à VILLEURBANNE
Ce site est protégé par reCAPTCHA la Politique de confidentialité et les Conditions d’utilisation de Google s’appliquent.
Obtenir un prêt immobilier au meilleur taux ?

En poursuivant votre navigation sans modifier vos paramètres, vous acceptez l'utilisation de cookies susceptibles de réaliser des statistiques de visite. Cliquez ici pour plus d'informations