Bénéficiez des services de nos partenaires locaux soigneusement sélectionnés
pour vous accompagner dans votre parcours d'achat immobilier

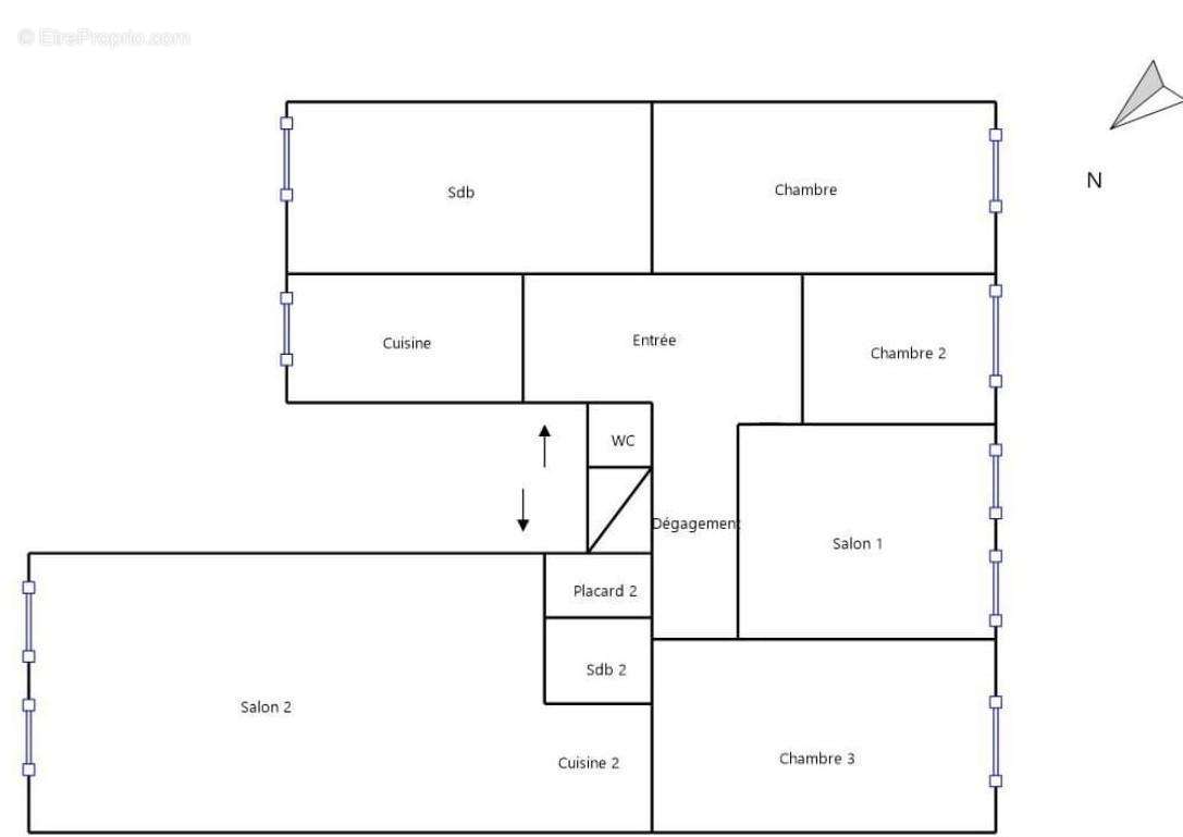
Appartement à vendre 145m² - 3/4 chambres - lyon 3ème - cours gambetta

— Lyon-3e 69003 —
690 000 €
145 m²
7 pièces

Nos partenaires locaux
Appartement familial à vendre de 145m² situé au centre ville (Cours Gambetta) à Lyon 3ème.Cet appartement à rafraichir, est composé de deux lots séparés avec deux entrées indépendantes, qui peuvent être réunis : Studio indépendant de 35m² (location possible) + appartement de 111m².L'appartement de 111m² est composé de deux chambres, un séjour avec balcon filant, une salle à manger (possibilité 3ème chambre), une cuisine séparée et une salle de bain avec fenêtre.Le studio est composé d'une chambre et d'un séjour/cuisine américaine.Possibilité d'un garage à proximité en plus pour 35.000 euros.Electricité refaite et aux normes, double vitrage, isolation, chauffage central individuel et climatisation réversible.Charges mensuelles pour la totalité de la surface : 180 euros Taxe foncière : 1250 eurosIdéal famille ou profession libérale.Honoraires à la charge du vendeur.
Voir plus

Référence: A5524

Prêt immobilier

Vous souhaitez connaître votre capacité d’emprunt et trouver le meilleur crédit immobilier ?
Réaliser une simulation gratuite

Appartement à LYON-3E
Appartement à LYON-3E
Appartement à LYON-3E
Appartement à LYON-3E
Appartement à LYON-3E
Appartement à LYON-3E
Appartement à LYON-3E
Ce site est protégé par reCAPTCHA la Politique de confidentialité et les Conditions d’utilisation de Google s’appliquent.
Obtenir un prêt immobilier au meilleur taux ?

En poursuivant votre navigation sans modifier vos paramètres, vous acceptez l'utilisation de cookies susceptibles de réaliser des statistiques de visite. Cliquez ici pour plus d'informations