Bénéficiez des services de nos partenaires locaux soigneusement sélectionnés
pour vous accompagner dans votre parcours d'achat immobilier

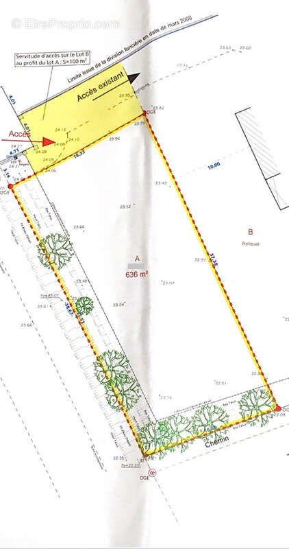
Terrain à bâtir 640m2 proche commodités

— Merlevenez 56700 —
123 000 €
640 m²
jardin

Nos partenaires locaux
Implanté dans un environnement hors lotissement et finement arboré à 800 mètres du centre bourg de Merlevenez, ne ratez pas ce beau terrain plat à bâtir d'environ 640m2 profitant d’une orientation sud-est en façade arrière. Situé en zone UB du PLU actuel, la parcelle sera vendue bornée et libre de constructeur. Viabilisation en bordure et assainissement individuel à prévoir.
A saisir chez IMMOTILLIET !
Les informations sur les risques auxquels ce bien est exposé sont disponibles sur le site Géorisques : www.georisques.gouv.fr Retrouvez l'ensemble de nos annonces et services sur : www.immo-tilliet.fr
Voir plus

Référence: 391
Honoraires d'agence de 4.24% à la charge de l'acquéreur
Barème des honoraires

Prêt immobilier

Vous souhaitez connaître votre capacité d’emprunt et trouver le meilleur crédit immobilier ?
Réaliser une simulation gratuite

Terrain à MERLEVENEZ
Terrain à MERLEVENEZ
Terrain à MERLEVENEZ
Ce site est protégé par reCAPTCHA la Politique de confidentialité et les Conditions d’utilisation de Google s’appliquent.
Obtenir un prêt immobilier au meilleur taux ?

En poursuivant votre navigation sans modifier vos paramètres, vous acceptez l'utilisation de cookies susceptibles de réaliser des statistiques de visite. Cliquez ici pour plus d'informations