Appartement 85 m² à Pleneuf-Val-Andre

— Pleneuf-Val-Andre 22370 —
758 000 €
85 m²
4 pièces
parkingbalcon/terrasseascenseur

Iad France - Nathalie ANQUET ([Coordonnées masquées]) vous propose : Appartement T4 de Standing au COEur de Pléneuf-Val-André

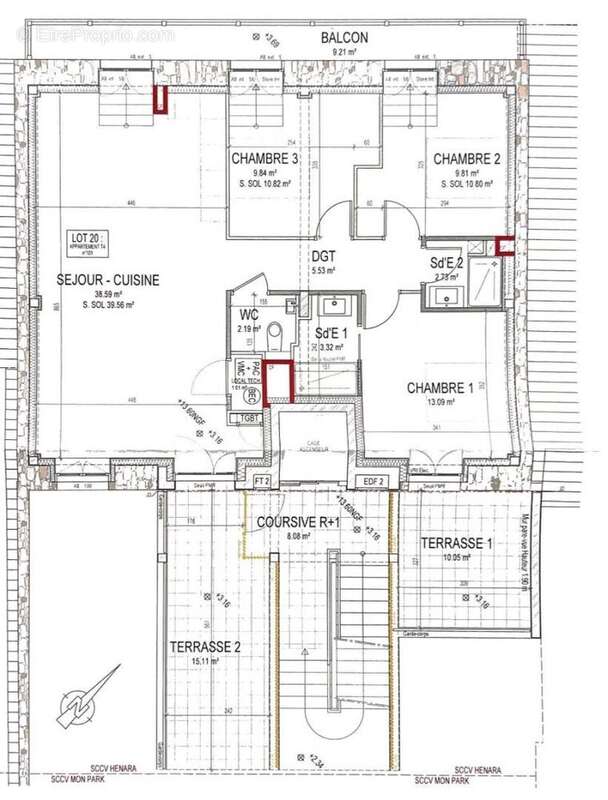
Situé au 1er étage d'une résidence de standing avec ascenseur, cet appartement T4 bénéficie d'un emplacement privilégié en plein centre de Pléneuf-Val-André. À seulement quelques pas de la plage et des commerces, il offre un cadre de vie exceptionnel pour profiter pleinement de la vie côtière.

Caractéristiques principales :
oType : T4 avec des espaces lumineux et bien agencés.
oEmplacement : En plein centre du Val-André, à proximité immédiate de la plage et des commodités.
oExtérieur : Terrasse privative, parfaite pour des moments de détente.
oParking : Place de parking incluse, assurant un stationnement pratique et sécurisé.
Chauffage : pompe à chaleur
Normes RE 2020
Disposition :
Cet appartement comprend un vaste séjour, une cuisine ouverte, trois chambres confortables, dont une suite parentale,
2 salles d'eau. Chauffage pompe à chaleur, normes RE 2020

Idéal pour une résidence principale, un pied-à-terre ou un investissement locatif, cet appartement allie confort et praticité dans un cadre recherché. disponible décembre 2025

Pour plus d'informations contactez-moi dès aujourd'hui et laissez-vous séduire par la vie en bord de mer !

Honoraires d'agence à la charge du vendeur. Bien non soumis au DPE. Les informations sur les risques auxquels ce bien est exposé sont disponibles sur le site Géorisques : www.georisques.gouv.fr. La présente annonce immobilière a été rédigée sous la responsabilité éditoriale de Mme Nathalie ANQUET EI (ID 42660), mandataire indépendant en immobilier (sans détention de fonds), agent commercial de la SAS I@D France immatriculé au RSAC de SAINT BRIEUC sous le numéro 413164591, titulaire de la carte de démarchage immobilier pour le compte de la société I@D France SAS.
Retrouvez tous nos biens sur notre site internet. www.iadfrance.fr.Informations LOI ALUR : Honoraires charge vendeur. (gedeon_6727_30177529)
Voir plus

Référence: 1641979-1
Honoraires à la charge du vendeur.
Barème des honoraires
Photo 1 - Appartement à PLENEUF-VAL-ANDRE
Photo 1
Photo 2 - Appartement à PLENEUF-VAL-ANDRE
Photo 2
Photo 3 - Appartement à PLENEUF-VAL-ANDRE
Photo 3
Photo 4 - Appartement à PLENEUF-VAL-ANDRE
Photo 4
Photo 5 - Appartement à PLENEUF-VAL-ANDRE
Photo 5
Photo 6 - Appartement à PLENEUF-VAL-ANDRE
Photo 6
Géorisques

Les informations sur les risques auxquels ce bien est exposé sont disponibles sur le site Géorisques : www.georisques.gouv.fr

Ce site est protégé par hCaptcha Politique de confidentialité et Conditions d’utilisation s’appliquent.

En poursuivant votre navigation sans modifier vos paramètres, vous acceptez l'utilisation de cookies susceptibles de réaliser des statistiques de visite. Cliquez ici pour plus d'informations