Appartement t3 - villa marine

— Plouharnel 56340 —
310 000 €
62 m²
3 pièces

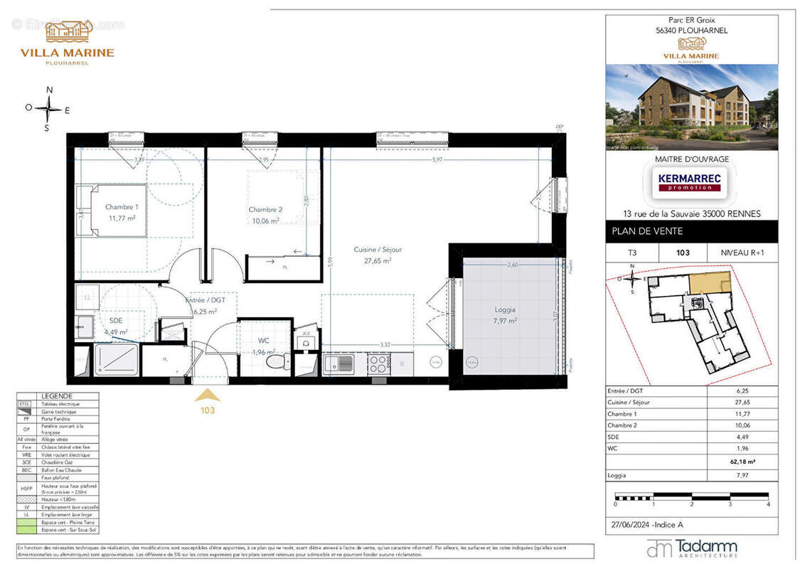
En plein centre du bourg de Plouharnel, appartement au 1er étage avec un ascenseur Dans un ensemble immobilier comprenant des appartements situés à 100 m des commerces et à 4 km de la plage (plage de st barbe) , appartement neuf du type T3, comprenant un séjour-cuisine, avec un accès direct à une loggia, 2 chambres, ainsi qu'une salle d'eau et ses toilettes séparées. L'appartement est livrable pour le 4ème trimestre 2026. Programme neuf KERMARREC - VILLA MARINE à Plouharnel Copropriété de 103 lots (Pas de procédure en cours).
Voir plus

Référence: 1268
Bien en copropriété. Nombre de lots : 103.
Barème des honoraires

Prêt immobilier

Vous souhaitez connaître votre capacité d’emprunt et trouver le meilleur crédit immobilier ?
Réaliser une simulation gratuite

Appartement à PLOUHARNEL
Appartement à PLOUHARNEL
Ce site est protégé par reCAPTCHA la Politique de confidentialité et les Conditions d’utilisation de Google s’appliquent.
Obtenir un prêt immobilier au meilleur taux ?

En poursuivant votre navigation sans modifier vos paramètres, vous acceptez l'utilisation de cookies susceptibles de réaliser des statistiques de visite. Cliquez ici pour plus d'informations