Bénéficiez des services de nos partenaires locaux soigneusement sélectionnés
pour vous accompagner dans votre parcours d'achat immobilier

Voir tous les partenaires locaux

Maison de ville 3p - nice la madeleine

— Nice 06000 —
292 000 €
62 m²
3 pièces

Nos partenaires locaux
Votre architecte local
Rénovation, création sur mesure et agrandissement : à vos cotés pour les professionnels & particuliers. Contact au :
06 80 55 27 16 ou cliquez-ici
Votre courtier assurances
ASSURANCES de PRETS : Consultez nous Avant de signer vos prêts ou Après pour renégocier à tout moment Etudes Gratuites
0493914033 ou cliquez-ici
Votre cuisiniste référent
Contactez nous pour vos projets de cuisine sur mesure, salles de bains et de dressing entièrement personnalisés...
0497148395 ou cliquez-ici
Votre référent en crédit
Crédit longue durée jusqu'à 95 ans fin de prêt- crédit à 110% avec frais de notaire et frais de garantie. Contact au :
06 28 53 39 92 ou cliquez-ici
Votre cuisiniste
Un accompagnement premium par des expertes, pour un projet sur mesure en toute sérénité.
04 97 13 82 86 ou cliquez-ici
Votre déménagement/débarras
On déménage, on débarrasse, vous respirez. Intervention rapide et efficace. Une équipe efficace à votre service
06 22 28 85 10 ou cliquez-ici

Voir tous les partenaires locaux

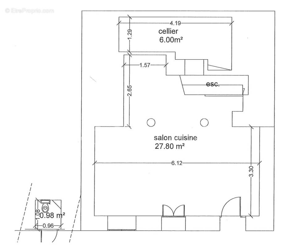
NICE LA MADELEINE. Agréable maison de ville type 3P principales de 62,61 m² habitables. Elle vous séduira par son potentiel et son environnement calme et paisible. Le bien dispose d'une terrasse et d'un jardin de 110 m² complanté de d'arbres fruitiers: citronnier saisonnier, mandarinier, prunier, mini cerisier, olivier. Idéal pour profiter du calme et du jardinage
La maison se compose, au rez-de-jardin : d'un séjour avec cuisine type américaine, un cellier et un abri de jardin. A l'étage : Deux chambres, salle de bains avec W.C.. une buanderie extérieure, un abri de jardin, un W.C. a l’extérieur.
Vous bénéficierez également d'un emplacement de PARKING.
Proximité immédiate de toutes commodités, transports et commerces de proximité.
Distant de 1,8 Km de La Promenade des Anglais.
PRIX : 292.000,00€.

Les informations sur les risques auxquels ce bien est exposé sont disponibles sur le site Géorisques
Voir plus

Référence: 85488417
DPE
A
B
C
D
E
F
G
GES
A
B
C
D
E
F
G
Maison à NICE
Maison à NICE
Maison à NICE
Maison à NICE
Maison à NICE
Maison à NICE
Maison à NICE
Maison à NICE
Maison à NICE
Maison à NICE
Maison à NICE
Maison à NICE
Maison à NICE
Maison à NICE
Maison à NICE
Maison à NICE
Maison à NICE
Géorisques

Les informations sur les risques auxquels ce bien est exposé sont disponibles sur le site Géorisques : www.georisques.gouv.fr

Ce site est protégé par hCaptcha Politique de confidentialité et Conditions d’utilisation s’appliquent.