Bénéficiez des services de nos partenaires locaux soigneusement sélectionnés
pour vous accompagner dans votre parcours d'achat immobilier

Charmante maison individuelle à terminer

— Beaulieu-Sur-Mer 06310 —
495 000 €
50 m²
3 pièces
parkingbalcon/terrasse

Nos partenaires locaux
Beaulieu-sur-Mer – Charmante Maison Individuelle à Personnaliser
Idéalement située à Beaulieu-sur-Mer, à proximité immédiate du port de plaisance, des commerces et du Jardin de l'Olivaie, cette maison individuelle offre une opportunité unique de créer un espace de vie sur-mesure.

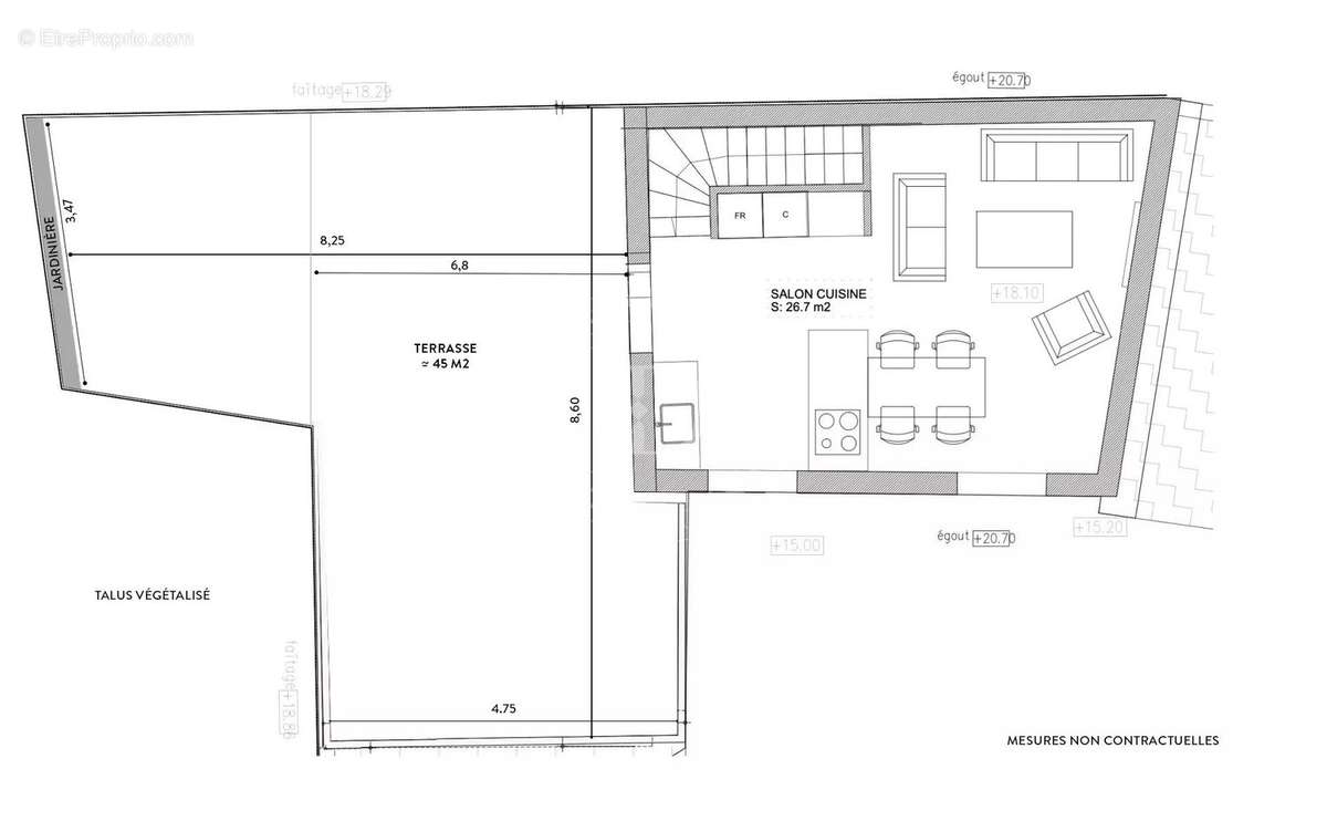
D’une surface totale d’environ 50 m², répartie sur deux niveaux, elle s’accompagne d’une spacieuse terrasse de 50 m², offrant un véritable espace extérieur à exploiter selon vos envies.

Rez-de-chaussée : Possibilité d’aménager deux chambres et deux salles d’eau.
1er étage : Un séjour avec cuisine ouverte bénéficiant d’un accès direct à la terrasse, parfait pour profiter de la douceur du climat méditerranéen.
La maison dispose également d’un garage double de 42 m², directement attenant au niveau 0, un atout rare dans ce secteur prisé.

Un Projet à Finaliser selon Vos Besoins
Les électricité, plomberie et climatisation sont prédisposés, laissant libre cours à votre imagination pour définir l’agencement intérieur. L’espace est non cloisonné, vous permettant d’optimiser chaque mètre carré selon vos besoins.

Les huisseries, toiture et murs sont neufs, tout comme l’étanchéité de la terrasse et des façades, garantissant une construction saine et pérenne.

Ne manquez pas cette opportunité rare d’acquérir une maison individuelle à personnaliser, à quelques pas de la mer et du centre-ville de Beaulieu-sur-Mer.

Pour plus d’informations ou pour organiser une visite, contactez-nous dès aujourd’hui.

Honoraires à la charge du vendeur. Barème des honoraires de transaction disponible en ligne et sur demande. Les informations sur les risques auxquels ce bien est exposé sont disponibles sur le site Géorisques : georisques.gouv.fr
Voir plus

Prêt immobilier

Vous souhaitez connaître votre capacité d’emprunt et trouver le meilleur crédit immobilier ?
Réaliser une simulation gratuite

Maison à BEAULIEU-SUR-MER
Maison à BEAULIEU-SUR-MER
Maison à BEAULIEU-SUR-MER
Maison à BEAULIEU-SUR-MER
Maison à BEAULIEU-SUR-MER
Maison à BEAULIEU-SUR-MER
Maison à BEAULIEU-SUR-MER
Maison à BEAULIEU-SUR-MER
Maison à BEAULIEU-SUR-MER
Maison à BEAULIEU-SUR-MER
Maison à BEAULIEU-SUR-MER
Maison à BEAULIEU-SUR-MER
Maison à BEAULIEU-SUR-MER
Maison à BEAULIEU-SUR-MER
Ce site est protégé par reCAPTCHA la Politique de confidentialité et les Conditions d’utilisation de Google s’appliquent.
Obtenir un prêt immobilier au meilleur taux ?

En poursuivant votre navigation sans modifier vos paramètres, vous acceptez l'utilisation de cookies susceptibles de réaliser des statistiques de visite. Cliquez ici pour plus d'informations