Appartement sierck les bains 4 pièce(s) 100 m2

— Sierck-Les-Bains 57480 —
159 000 €
100 m²
4 pièces

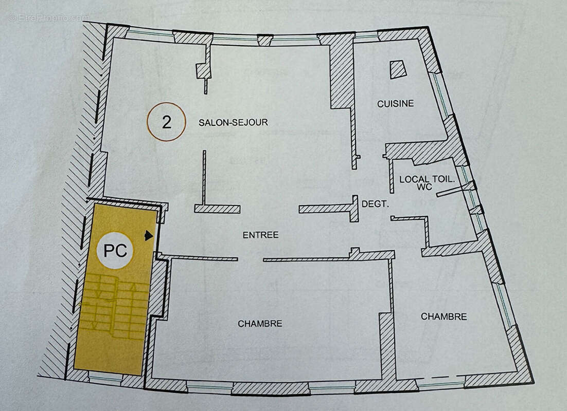
Logement à réhabiliter totalement Au coeur de Sierck-les-Bains, cet appartement de 100 m² situé au premier étage d'une petite copropriété de 4 lots, cet Appartement offre un cadre de vie unique. Bénéficiant d'une vue charmante sur la place et bordé par le ruisseau, il se trouve à proximité immédiate des commerces et des commodités. L'appartement, lumineux et traversant, est à réhabiliter totalement et ne possède actuellement pas de système de chauffage mais offre un fort potentiel grâce à ses beaux volumes. Il se compose d'un couloir central desservant sur la gauche un vaste salon//séjour ainsi qu'un espace cuisine dans l'angle du batiment, une salle d'eau ainsi qu'un wc complète le renfoncement. L'espace nuit abrite actuellement deux chambres à coucher dont une trés spacieuse de 28m2 pouvant être scinder en deux. En sous-sol de la copropriété, une cave offre un espace de rangement pratique de 10m2. Bien que nécessitant une réhabilitation complète, cet appartement représente une opportunité exceptionnelle pour les amateurs de projets personnalisés, à la recherche d'un lieu de vie à leur image. A SAISIR ! Copropriété de 4 lots - dont 3 lots habitation. Charges annuelles : 600 euros.
Voir plus

Référence: 547
Bien en copropriété. Nombre de lots : 4. Charges de copropriété : 600 €. Procédure en cours.
Honoraires à la charge du vendeur.
Barème des honoraires

Prêt immobilier

Vous souhaitez connaître votre capacité d’emprunt et trouver le meilleur crédit immobilier ?
Réaliser une simulation gratuite

Appartement à SIERCK-LES-BAINS
Appartement à SIERCK-LES-BAINS
Appartement à SIERCK-LES-BAINS
Appartement à SIERCK-LES-BAINS
Appartement à SIERCK-LES-BAINS
Appartement à SIERCK-LES-BAINS
Appartement à SIERCK-LES-BAINS
Appartement à SIERCK-LES-BAINS
Appartement à SIERCK-LES-BAINS
Appartement à SIERCK-LES-BAINS
Appartement à SIERCK-LES-BAINS
Appartement à SIERCK-LES-BAINS
Appartement à SIERCK-LES-BAINS
Appartement à SIERCK-LES-BAINS
Appartement à SIERCK-LES-BAINS
Appartement à SIERCK-LES-BAINS
Ce site est protégé par reCAPTCHA la Politique de confidentialité et les Conditions d’utilisation de Google s’appliquent.
Obtenir un prêt immobilier au meilleur taux ?

En poursuivant votre navigation sans modifier vos paramètres, vous acceptez l'utilisation de cookies susceptibles de réaliser des statistiques de visite. Cliquez ici pour plus d'informations