Bénéficiez des services de nos partenaires locaux soigneusement sélectionnés
pour vous accompagner dans votre parcours d'achat immobilier

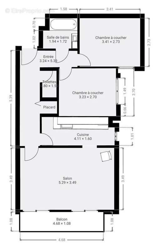
Appartement 3 pièces avec balcon et parking

— Bagneux 92220 —
262 000 €
56 m²
3 pièces
parkingbalcon/terrasseascenseur

Nos partenaires locaux
BAGNEUX SUD / SCEAUX - A proximité de Sceaux, dans une rue très calme, cet agréable appartement se situe au 2ème étage par ascenseur d'une petite copropriété récente. En très bon état général, il comprend une entrée avec rangements, un séjour / salle à manger ouvrant sur balcon, une cuisine semi-ouverte, 2 chambres sur jardin, une salle de bain et un WC séparé. Doubles-vitrages récents. Accès sécurisé. Au sous-sol, une cave et une place de parking. Proche RER B, écoles et commerces.
Bien soumis au statut de la copropriété. Pas de procédure en cours. Nous vous informons que conformément à l'article L. 561-5 du Code Monétaire et Financier, une pièce d'identité vous sera demandée avant chaque visite. Les informations sur les risques auxquels ce bien est exposé sont disponibles sur le site Géorisques : www.georisques.gouv.fr
Voir plus

Référence: NU1-355
DPE
A
B
C
D
E
F
G
GES
A
B
C
D
E
F
G
Appartement à BAGNEUX
Appartement à BAGNEUX
Appartement à BAGNEUX
Appartement à BAGNEUX
Appartement à BAGNEUX
Appartement à BAGNEUX
Appartement à BAGNEUX
Appartement à BAGNEUX
Appartement à BAGNEUX
Géorisques

Les informations sur les risques auxquels ce bien est exposé sont disponibles sur le site Géorisques : www.georisques.gouv.fr

Ce site est protégé par hCaptcha Politique de confidentialité et Conditions d’utilisation s’appliquent.

En poursuivant votre navigation sans modifier vos paramètres, vous acceptez l'utilisation de cookies susceptibles de réaliser des statistiques de visite. Cliquez ici pour plus d'informations