Bénéficiez des services de nos partenaires locaux soigneusement sélectionnés
pour vous accompagner dans votre parcours d'achat immobilier

Sainte maxime - exclusivité :

— Sainte-Maxime 83120 —
349 000 €
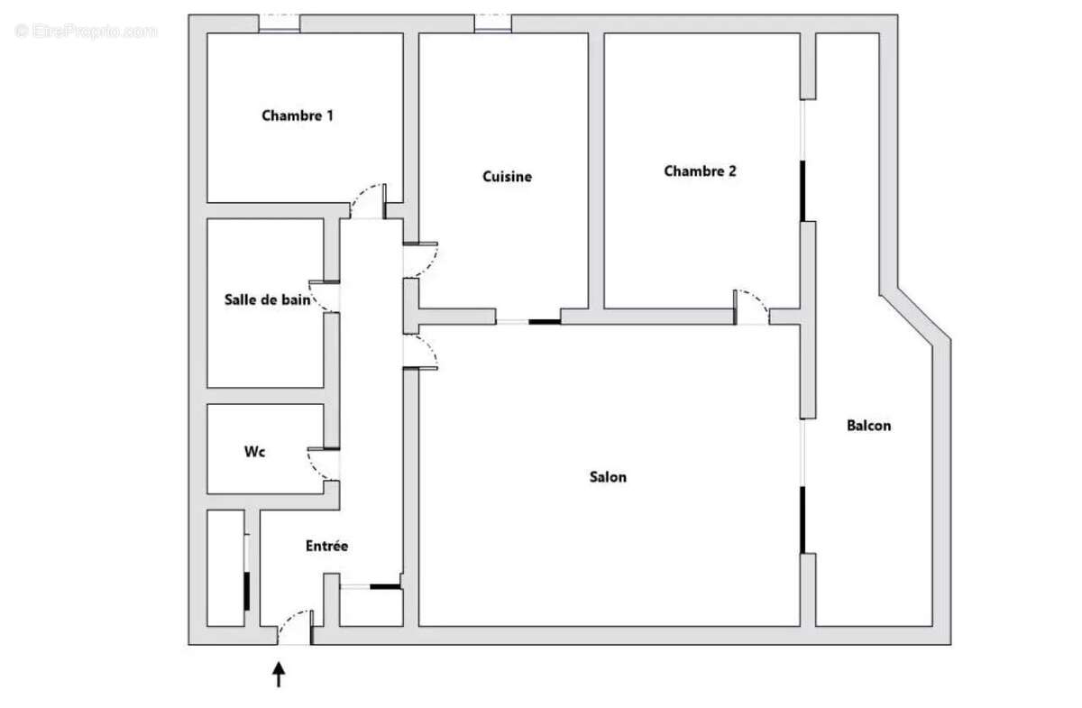
54 m²
3 pièces
parkingbalcon/terrasseascenseuraccès handicapé

Nos partenaires locaux
***APPARTEMENT + GARAGE + PARKING***
EMPLACEMENT IDÉAL pour cet appartement de type 3 pièces, situé en dernier étage avec ascenseur et en pignon d'immeuble. D'une superficie d'environ 54 m², il est composé d'une entrée avec placard, séjour avec cheminée à insert, ouvrant sur une terrasse de 5.30 m² et exposée Sud/Ouest. Une cuisine indépendante et équipée, 2 chambres dont une avec balcon, une salle de bains et WC séparés.

GARAGE en sous-sol & PARKING extérieur PRIVATIFS !

Résidence située à proximité immédiate des commerces, de la plage et disposant d'un accès aux personnes à mobilité réduite. Eau froide comprise dans les charges !

« Les informations sur les risques auxquels ce bien est exposé sont disponibles sur le site Géorisques : www.georisques.gouv.fr ».
Voir plus

Référence: 85493210
DPE
A
B
C
D
E
F
G
GES
A
B
C
D
E
F
G

Prêt immobilier

Vous souhaitez connaître votre capacité d’emprunt et trouver le meilleur crédit immobilier ?
Réaliser une simulation gratuite

Appartement à SAINTE-MAXIME
Appartement à SAINTE-MAXIME
Appartement à SAINTE-MAXIME
Appartement à SAINTE-MAXIME
Appartement à SAINTE-MAXIME
Appartement à SAINTE-MAXIME
Appartement à SAINTE-MAXIME
Appartement à SAINTE-MAXIME
Appartement à SAINTE-MAXIME
Appartement à SAINTE-MAXIME
Appartement à SAINTE-MAXIME
Appartement à SAINTE-MAXIME
Appartement à SAINTE-MAXIME
Appartement à SAINTE-MAXIME
Appartement à SAINTE-MAXIME
Ce site est protégé par reCAPTCHA la Politique de confidentialité et les Conditions d’utilisation de Google s’appliquent.
Obtenir un prêt immobilier au meilleur taux ?

En poursuivant votre navigation sans modifier vos paramètres, vous acceptez l'utilisation de cookies susceptibles de réaliser des statistiques de visite. Cliquez ici pour plus d'informations