Bénéficiez des services de nos partenaires locaux soigneusement sélectionnés
pour vous accompagner dans votre parcours d'achat immobilier

Terrain st simon

— Toulouse 31100 —
159 000 €
600 m²
jardin

Nos partenaires locaux
Seulement à l'Equipe Immo !
Dans le quartier résidentiel de St Simon, à proximité immédiate des écoles maternelles, primaires et collège, en accès métro et rocade à moins de 10min avec la base verte de la Ramée à proximité, ce terrain de 600m2 constructible et viabilisé vous offre un cadre de vie idéal pour conjuguer vie citadine et calme.

Orienté Sud Est, il vous garantit une belle exposition et se trouve en retrait du chemin Canto Laouzetto, l'accès au terrain étant sécurisé par un portail automatique.

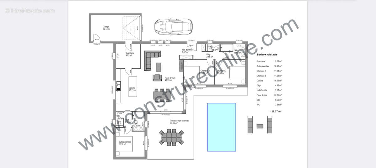
Un travail en collaboration avec Construire on line a été réalisé pour proposer un projet de construction d'habitation idéal tenant compte du terrain avec un budget estimatif. Bien entendu, tout autre type de projet de construction est possible dans le respect des règles d'urbanisme sur le secteur en vigueur.
Le terrain reste à ce jour libre de constructeur et l'étude de sol G1 a été réalisé.

Vous recherchez un cadre de vie paisible associé à une vie citadine, ce terrain vous attend !
Voir plus

Référence: 33487
Honoraires à la charge du vendeur.
Barème des honoraires

Prêt immobilier

Vous souhaitez connaître votre capacité d’emprunt et trouver le meilleur crédit immobilier ?
Réaliser une simulation gratuite

Terrain à TOULOUSE
Terrain à TOULOUSE
Terrain à TOULOUSE
Terrain à TOULOUSE
Terrain à TOULOUSE
Terrain à TOULOUSE
Ce site est protégé par reCAPTCHA la Politique de confidentialité et les Conditions d’utilisation de Google s’appliquent.
Obtenir un prêt immobilier au meilleur taux ?

En poursuivant votre navigation sans modifier vos paramètres, vous acceptez l'utilisation de cookies susceptibles de réaliser des statistiques de visite. Cliquez ici pour plus d'informations