Immeuble amiens 80 m2 amiens st honoré

— Amiens 80090 —
233 500 €
80 m² / 64 m²
7 pièces
jardin

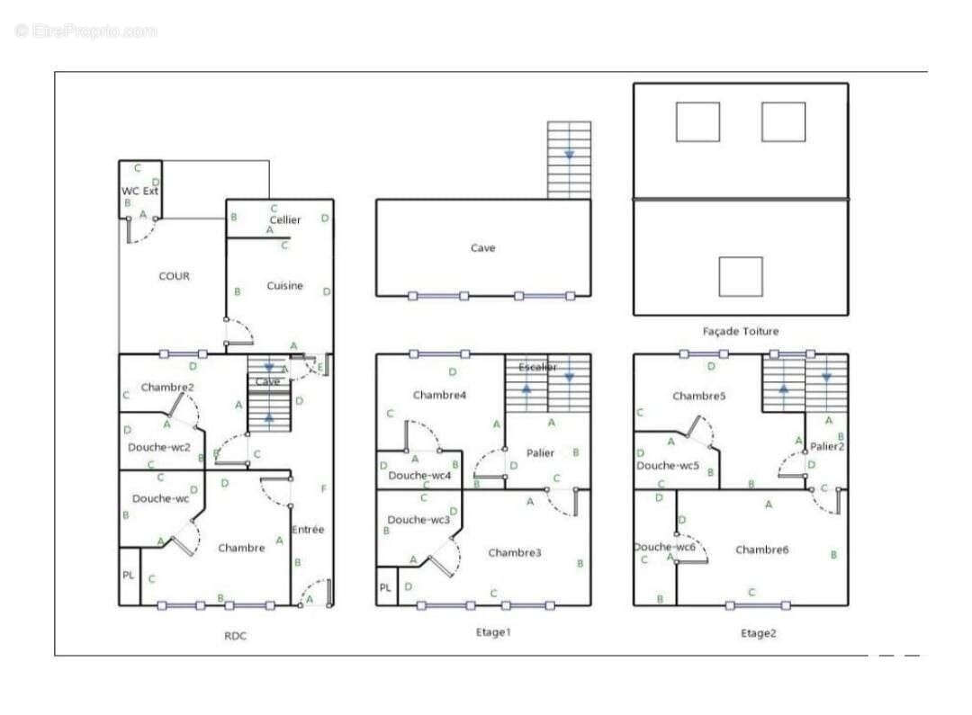
Vous cherchez un investissement immobilier à Amiens ? Les Pépites de l'Immobilier vous invite à découvrir cet immeuble de rapport de 80m², situé quartier St Honoré à Amiens. L'immeuble est aujourd'hui divisé en 6 chambres, toutes équipées d'une salle d'eau et d'un WC. Cuisine commune avec cellier et cour extérieure avec WC. Revenus locatifs mensuels actuels environ 1600 euros hors charges (charges environ 70 euros/mois pour chaque chambre). Baux meublés 1 an (loyers à revaloriser). Actuellement 4 chambres sur 6 sont louées, garantissant une rentabilité immédiate. Cave. Côté technique : Taxe foncière : 2465 euros. Chaudière gaz récente. Dépenses énergies/an : gaz 1537 euros - électricité 609 euros - eau environ 600 euros. Les informations sur les risques auxquels ce bien est exposé sont disponibles sur le site Géorisques : www.georisques.gouv.fr. On aime cet immeuble fonctionnel, proche des commodités et réseaux de bus. Si vous êtes en quête de votre projet d'investissement locatif, cet immeuble par sa fonctionnalité et sa localisation retiendra votre attention ! (3.78 % honoraires TTC à la charge de l'acquéreur.) GHISLAINE PERRIN (EI) Agent Commercial - Numéro RSAC : 487894297 - Amiens.
Voir plus

Référence: 246
Honoraires d'agence de 3.78% à la charge de l'acquéreur
DPE
A
B
C
D
E
F
G
GES
A
B
C
D
E
F
G

Prêt immobilier

Vous souhaitez connaître votre capacité d’emprunt et trouver le meilleur crédit immobilier ?
Réaliser une simulation gratuite

Appartement à AMIENS
Appartement à AMIENS
Appartement à AMIENS
Appartement à AMIENS
Appartement à AMIENS
Appartement à AMIENS
Appartement à AMIENS
Appartement à AMIENS
Ce site est protégé par reCAPTCHA la Politique de confidentialité et les Conditions d’utilisation de Google s’appliquent.
Obtenir un prêt immobilier au meilleur taux ?

En poursuivant votre navigation sans modifier vos paramètres, vous acceptez l'utilisation de cookies susceptibles de réaliser des statistiques de visite. Cliquez ici pour plus d'informations