Bénéficiez des services de nos partenaires locaux soigneusement sélectionnés
pour vous accompagner dans votre parcours d'achat immobilier

Local/bureau à vendre SEMEAC (65)

— Semeac 65600 —
799 000 €
1 051 m²
12 pièces
parkingbalcon/terrasse

Nos partenaires locaux
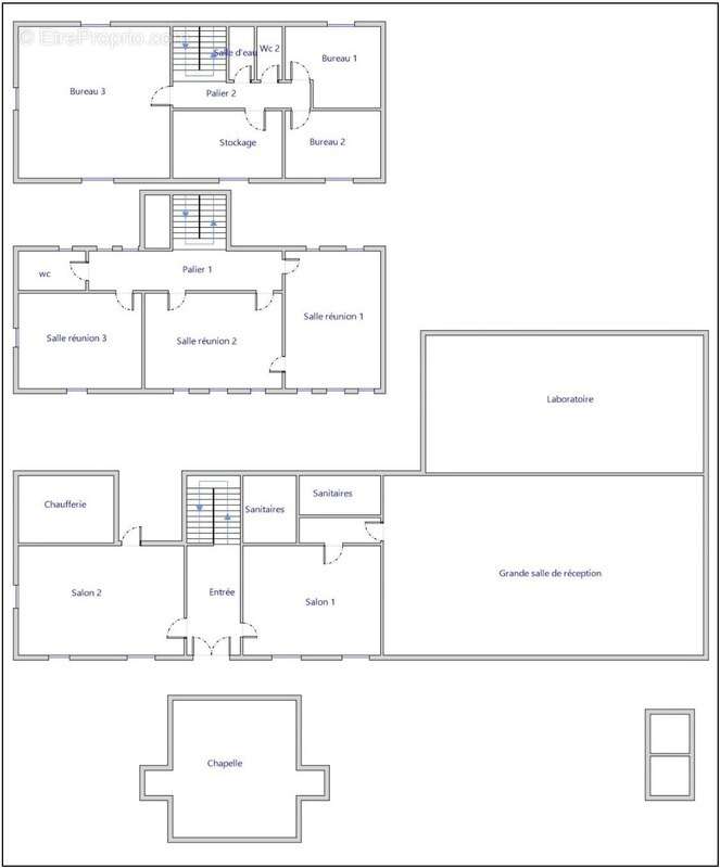
Très bel ensemble immobilier, au sud de Tarbes à 1.5 kilomètre du centre, proche de toutes les commodités, (autoroute, grandes surfaces...) proposant 1051 m² de surfaces exploitables sur un terrain total de 6811 m², dont 1319 m² de parkings.
Un ensemble composée d'une maison principale de 1880 (ancienne congrégation de religieuses), sur 3 niveaux d'une surface de 403 m², rénovée en 2005.
Beaucoup de charme pour cette bâtisse proposant un rdc de 168 m² (hall, 2 salles de réunion, 3 blocs sanitaires avec wc).
Un 1er étage de 110 m² : 2 salles de formation, 1 grand bureau et 2 wc.
Un second étage de 125 m² : 3 chambres/bureaux, 1 salle d'eau, 1 wc et une grande pièce avec poutres apparentes (aujourd'hui utilisée en bureau).

En rdc, communiquant avec la maison principale, vous bénéficiez également d'une très belle salle polyvalente de 288 m², construite en 2005, très lumineuse, climatisation réversible, donnant sur une terrasse à l'Est de 220 m² et face au jardin d'agrément de 3000 m².
Derrière celle ci, à l'ouest, un laboratoire/cuisine de 250 m², proposant 5 chambres froides en parfait état, une réserve sèche, légumerie, zone pâtisserie réfrigérée, zone cuisson, plonge et salle de pause ; également un quai de chargement béton à l'arrière du bâtiment.
En face de la maison, une chapelle de 110 m² bénéficiant d'un usage commercial, peut également servir de stockage, ou rester dans sa configuration d'origine, ajoutant à l'ensemble un charme authentique.
Un grand parking de 1319 m² peut recevoir une quarantaine de véhicules.
Le + : Un bâtiment d'environs 250 m² sur 2 niveaux, entrée et parking indépendants, actuellement en activité pour de la formation professionnelle, pourrait s'ajouter si besoin.

Tout est prévu et en bel état pour continuer l'activité actuelle d'espaces réceptifs : Entreprises, formations/coworking, mariages, réceptions de jour et nocturne.
Mais aussi d'autres projets pourraient très bien s'adapter en ce lieu unique, au charme rare dans une zone géographique du grand Tarbes, où très peu d'ensemble au potentiel comme celui-ci, vous seront proposés.

Je vous attends pour une intéressante visite.

Les honoraires sont à la charge du vendeur.
Les informations sur les risques auxquels ce bien est exposé sont disponibles sur le site Géorisques : www. georisques. gouv. fr.

Réseau Immobilier CAPIFRANCE - Votre agent commercial (RSAC N°503 643 413 - Greffe de TARBES) Laurent DURROUX Entrepreneur Individuel [Coordonnées masquées] - Réf.891532
Voir plus

Référence: 340935968762
Honoraires à la charge du vendeur.
DPE
A
B
C
D
E
F
G
GES
A
B
C
D
E
F
G
Commerce à SEMEAC
Commerce à SEMEAC
Commerce à SEMEAC
Commerce à SEMEAC
Commerce à SEMEAC
Commerce à SEMEAC
Commerce à SEMEAC
Commerce à SEMEAC
Commerce à SEMEAC
Commerce à SEMEAC
Commerce à SEMEAC
Commerce à SEMEAC
Commerce à SEMEAC
Commerce à SEMEAC
Commerce à SEMEAC
Commerce à SEMEAC
Commerce à SEMEAC
Commerce à SEMEAC
Commerce à SEMEAC
Commerce à SEMEAC
Commerce à SEMEAC
Commerce à SEMEAC
Géorisques

Les informations sur les risques auxquels ce bien est exposé sont disponibles sur le site Géorisques : www.georisques.gouv.fr

Ce site est protégé par hCaptcha Politique de confidentialité et Conditions d’utilisation s’appliquent.

En poursuivant votre navigation sans modifier vos paramètres, vous acceptez l'utilisation de cookies susceptibles de réaliser des statistiques de visite. Cliquez ici pour plus d'informations