Bénéficiez des services de nos partenaires locaux soigneusement sélectionnés
pour vous accompagner dans votre parcours d'achat immobilier

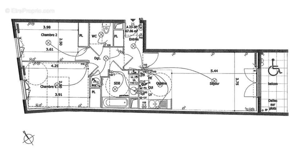
Exclusivite - appartement 3 pieces avec balcon

— Antony 92160 —
330 000 €
67 m²
3 pièces

Nos partenaires locaux
Nouveauté à visiter sans tarder

À seulement 10 minutes à pied de la gare RER Fontaine Michalon, découvrez en exclusivité cet appartement 3 pièces de 67 m², idéalement situé dans un immeuble calme datant de 2011, à proximité immédiate de toutes les commodités.

Ce bien est situé au 2eme étage d'un immeuble de 2011 dans une résidence récente et bien entretenue, offrant un cadre de vie paisible.
Il comprend:
- une entrée avec placard
- un séjour
- une cuisine ouverte
- deux chambres avec placards
- une salle de bain
- un WC séparé
- un balcon
- une place de parking privative en sous sols
- une cave

Ne laissez pas passer cette occasion ! Contactez-nous pour organiser une visite.

DPE 123 (C) - GES 3 (A).

Bien soumis au statut de la copropriété.
Pas de procédure en cours.
Charges quote-part du budget prévisionnel 345€/trimestre.
Taxe fonciere : 1 598 €.

Honoraires inclus 3,6% TTC soit 11 467€

Les informations sur les risques auxquels ce bien est exposé sont sur le site Géorisques du gouvernement.
Cette annonce contient une projection virtuelle réalisée par IA.

Prêt Vision Immo - société immatriculée au RCS de NANTERRE sous le numéro 852 689 397
Voir plus

Référence: 85633541
Barème des honoraires
DPE
A
B
C
D
E
F
G
GES
A
B
C
D
E
F
G

Prêt immobilier

Vous souhaitez connaître votre capacité d’emprunt et trouver le meilleur crédit immobilier ?
Réaliser une simulation gratuite

Appartement à ANTONY
Appartement à ANTONY
Appartement à ANTONY
Appartement à ANTONY
Appartement à ANTONY
Appartement à ANTONY
Appartement à ANTONY
Appartement à ANTONY
Appartement à ANTONY
Appartement à ANTONY
Appartement à ANTONY
Appartement à ANTONY
Appartement à ANTONY
Appartement à ANTONY
Ce site est protégé par reCAPTCHA la Politique de confidentialité et les Conditions d’utilisation de Google s’appliquent.
Obtenir un prêt immobilier au meilleur taux ?

En poursuivant votre navigation sans modifier vos paramètres, vous acceptez l'utilisation de cookies susceptibles de réaliser des statistiques de visite. Cliquez ici pour plus d'informations