Locaux/biens immobiliers

— Ploumagoar 22970 —
499 875 €
1 366 m²
9 pièces
parking

EXCLUSIVITÉ EFFICITY - 22970 - PLOUMAGOAR - BRETAGNE - ENTREPÔTS - BUREAUX - MAGASIN - TERRAIN - VISIBILITÉ MAXIMALE

EFFICITY le leader des estimations en ligne vous propose sur un TERRAIN de 3480 m2 cet ensemble pour de multiples possibilités.

A 5 minutes de GUINGAMP et 20 minutes de Saint Brieuc, et au bord de la N12, ces BÂTIMENTS seront une opportunité pour y installer votre activité ou bien INVESTIR.

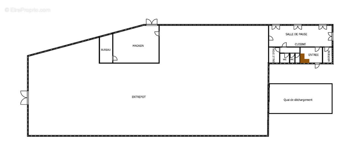
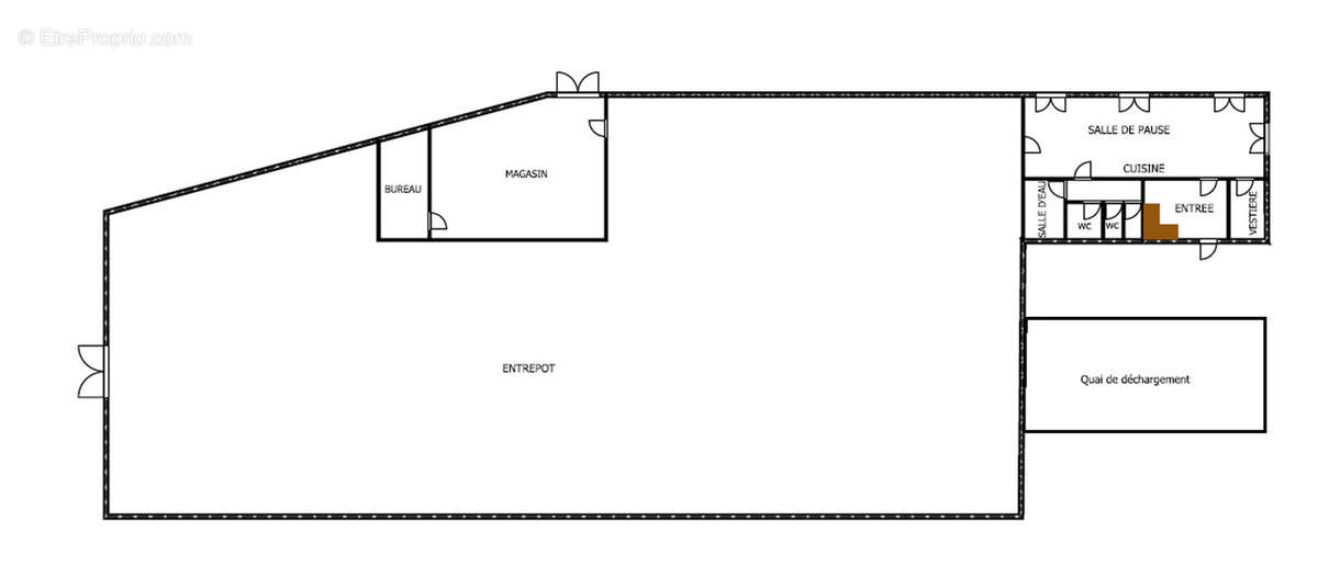
Vous trouverez un HANGAR à usage soit d' ENTREPÔT, STOCKAGE, LOGISTIQUE, ATELIER avec une partie SHOW-ROOM, MAGASIN et un BUREAU pour 1150 m².

Contigu et au rez de chaussée, sur 216 m², une ENTRÉE indépendante vous ouvre l'accès à un espace SALLE de RÉUNION avec CUISINE, SALLE d' ARCHIVES, 2 WC séparés dont un PMR, et une SALLE d' EAU.

A L'étage un bel OPEN SPACE dessert 4 BUREAUX INDÉPENDANTS et un WC. Deux bureaux sont actuellement LOUÉS.

Ce LOCAL d' ACTIVITÉS est idéal pour un ARTISAN, COMMERÇANT, LOGISTIQUE et peut être divisible pour un INVESTISSEUR.

Les plus:

-Un QUAI de DÉCHARGEMENT pour PL,
-RÉNOVATION RÉCENTE (sols, peinture, électricité, chauffage, portes...)
-ALARME,
-EXCELLENTE VISIBILITÉ
-ACCESSIBILITÉ depuis les deux sens de circulation de la 4 voies.
Les informations sur les risques auxquels ce bien est exposé sont disponibles sur le site Georisque : georisques. gouv. fr
Jean-Bernard Gautron - EI - est Agent Commercial mandataire en immobilier, immatriculé au Registre Spécial des Agents Commerciaux du Tribunal de Commerce de Rennes sous le n°753518919.
Siège social du mandant : effiCity, 48 avenue de Villiers - 75017 PARIS - Société par Actions Simplifiée, société au capital de 132 373,05 euros, immatriculée au RCS Paris 497 617 746 et titulaire de la Carte professionnelle CPI 75[Coordonnées masquées]02 025 - CCI Paris IDF - Caisse de Garantie : GALIAN Assurances 89 rue de la Boétie 75008 Paris
Voir plus

Référence: 175826
Honoraires d'agence de 7.5% à la charge de l'acquéreur
Barème des honoraires

Prêt immobilier

Vous souhaitez connaître votre capacité d’emprunt et trouver le meilleur crédit immobilier ?
Réaliser une simulation gratuite

Commerce à PLOUMAGOAR
Commerce à PLOUMAGOAR
Commerce à PLOUMAGOAR
Commerce à PLOUMAGOAR
Commerce à PLOUMAGOAR
Commerce à PLOUMAGOAR
Commerce à PLOUMAGOAR
Commerce à PLOUMAGOAR
Commerce à PLOUMAGOAR
Commerce à PLOUMAGOAR
Commerce à PLOUMAGOAR
Ce site est protégé par reCAPTCHA la Politique de confidentialité et les Conditions d’utilisation de Google s’appliquent.
Obtenir un prêt immobilier au meilleur taux ?

En poursuivant votre navigation sans modifier vos paramètres, vous acceptez l'utilisation de cookies susceptibles de réaliser des statistiques de visite. Cliquez ici pour plus d'informations