Pas de appartement à La Bazoche-Gouet pour le moment. Découvrez dès maintenant les appartements dans le département Eure-et-Loir.

Longère avec vie de plain pied - 5 chambres - 4 900 m2 de terrain

— Brecey 50370 —
239 500 €
180 m² / 4 900 m²
7 pièces
parkingbalcon/terrassejardin

Loslier Immobilier, moins d'honoraires, plus de services.
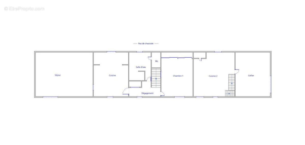
Nous vous proposons en exclusivité, à seulement 3 kms du centre-ville de Brécey et ses nombreux commerces, cette longère accueillant 5 chambres sur un terrain de 4 900 m2.
Elle se compose au rez-de-chaussée d'un séjour de 30 m2 avec cheminée, une cuisine séparée, un dégagement avec placards, une salle de bain avec douche et baignoire, un WC ainsi qu'une chambre spacieuse dotée d'un grand placard. On retrouve également une seconde pièce de vie avec un accès à l'étage et une pièce à usage de cellier, permettant de créer un second logement aisément.
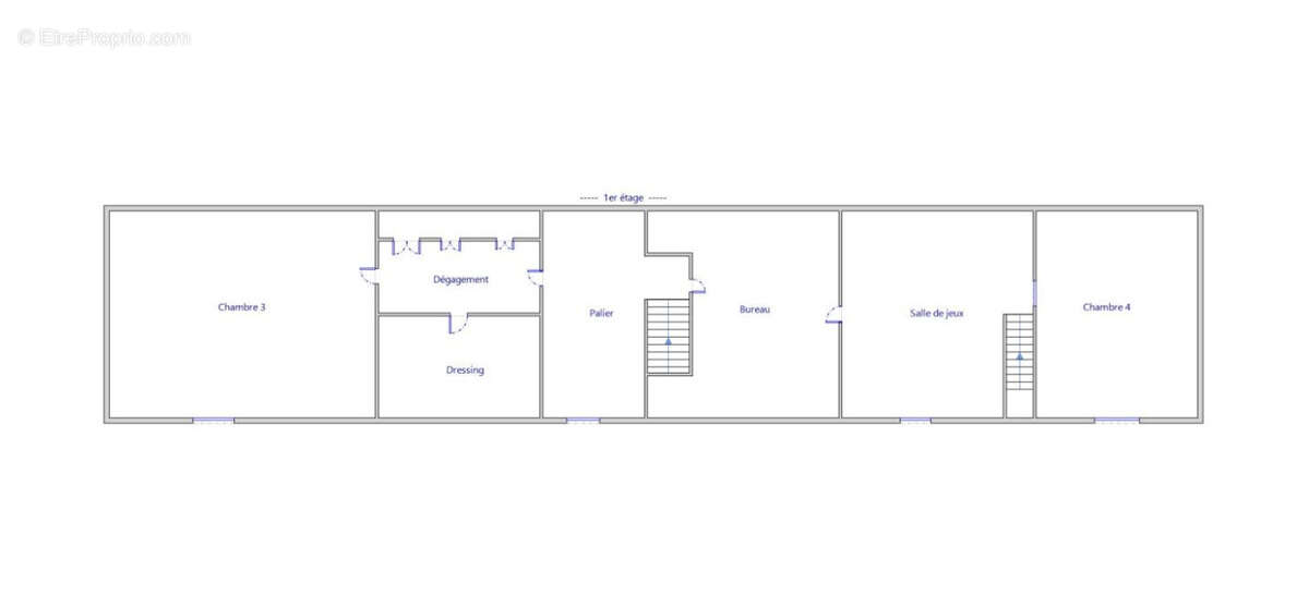
À l'étage, une mezzanine dessert 4 chambres entre 10 et 16 m2.
De nombreux rangements se trouvent dans les différentes pièces de la maison.
À l'extérieur, le terrain de 4 900 m2 est cloturé par des haies et un portail électrique, il accueille de nombreux arbres fruitiers. On y retrouve un triple garage de 60 m2 avec carport, un atelier, un abri de jardin et un bâtiment en pierres et torchis.
Pour plus d'information, n'hésitez pas à contacter votre conseillère Marine DUBREUIL au [Coordonnées masquées] ou par mail : [Coordonnées masquées]
Les informations sur les risques auxquels ce bien est exposé sont disponibles sur le site Géorisques : georisques.gouv.fr
Voir plus

Référence: 2781
Honoraires d'agence de 4.13% à la charge de l'acquéreur
Barème des honoraires
DPE
A
B
C
D
E
F
G
GES
A
B
C
D
E
F
G

Prêt immobilier

Vous souhaitez connaître votre capacité d’emprunt et trouver le meilleur crédit immobilier ?
Réaliser une simulation gratuite

Maison à BRECEY
Maison à BRECEY
Maison à BRECEY
Maison à BRECEY
Maison à BRECEY
Maison à BRECEY
Maison à BRECEY
Maison à BRECEY
Maison à BRECEY
Maison à BRECEY
Maison à BRECEY
Maison à BRECEY
Maison à BRECEY
Maison à BRECEY
Maison à BRECEY
Maison à BRECEY
Maison à BRECEY
Ce site est protégé par reCAPTCHA la Politique de confidentialité et les Conditions d’utilisation de Google s’appliquent.
Obtenir un prêt immobilier au meilleur taux ?

En poursuivant votre navigation sans modifier vos paramètres, vous acceptez l'utilisation de cookies susceptibles de réaliser des statistiques de visite. Cliquez ici pour plus d'informations