Bénéficiez des services de nos partenaires locaux soigneusement sélectionnés
pour vous accompagner dans votre parcours d'achat immobilier

Appartement 100m² à saint-etienne

— Saint-Etienne 42100 —
185 000 €
100 m²
3 pièces
ascenseur

Nos partenaires locaux
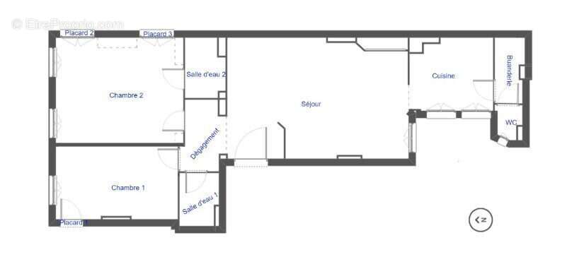
Découvrez cet appartement T3 d'exception situé au coeur de Saint-Étienne, au 12 rue de la République.

Ce bien, entièrement rénové en 2025, est un véritable joyau de modernité et de confort. Avec une surface habitable de 100 m², cet appartement vous offre un espace de vie généreux et lumineux. Le séjour de 55 m² est le point central de cet appartement, où vous pourrez recevoir vos amis et votre famille dans une atmosphère chaleureuse et accueillante. Les 2 chambres spacieuses et les 2 salles d'eau vous garantissent un confort optimal au quotidien. L'appartement dispose également d'1 WC indépendant, offrant une grande praticité.

Situé au 2ème étage d'un immeuble de 4 étages, cet appartement bénéficie d'un ascenseur pour un accès facile et rapide. Le standing de cet appartement est indéniable, avec un état intérieur neuf et des parties communes en bon état. La cuisine aménagée avec un coin cuisine est parfaitement intégrée dans l'espace, offrant une fonctionnalité optimale. Les ouvertures en PVC double vitrage garantissent une excellente isolation thermique et acoustique. Cet appartement dispose également d'une cave de 5 m² et d'un grenier, offrant un espace de stockage supplémentaire appréciable.

Ne manquez pas cette opportunité unique de vivre dans un appartement alliant modernité, confort et élégance. En termes de commodités, vous serez à 5 minutes à pied des transports en commun (bus et tramway), des écoles (maternelle et élémentaire), des restaurants et des parcs. À 10 minutes à pied, vous trouverez des crèches et des collèges. À 15 minutes à pied, un hôpital et plusieurs médecins généralistes sont accessibles. Enfin, l'appartement est éligible à l'internet haut débit et à la fibre, garantissant une connexion rapide et fiable.

Honoraires à la charge du vendeur. Dans une copropriété de 24 lots. Quote-part moyenne du budget prévisionnel 1 536 €/an. Aucune procédure n'est en cours. Classe énergie D, Classe climat D Montant estimé des dépenses annuelles d'énergie pour un usage standard : entre 2014.00 € et 2726.00 € sur les années 2021, 2022 et 2023 (abonnements compris). Les informations sur les risques auxquels ce bien est exposé sont disponibles sur le site Géorisques : georisques.gouv.fr.

Votre conseiller DOMIVIA : Gérant - Arthur VERAMESSE
Carte T CPI42[Coordonnées masquées]00015
RCP Generali IARD
Voir plus

Référence: VA1902-DOMIVIA
Bien en copropriété. Nombre de lots : 24. Charges de copropriété : 1536 €.
Honoraires à la charge du vendeur.
Barème des honoraires
DPE
A
B
C
D
E
F
G
GES
A
B
C
D
E
F
G

Prêt immobilier

Vous souhaitez connaître votre capacité d’emprunt et trouver le meilleur crédit immobilier ?
Réaliser une simulation gratuite

Appartement à SAINT-ETIENNE
Appartement à SAINT-ETIENNE
Appartement à SAINT-ETIENNE
Appartement à SAINT-ETIENNE
Appartement à SAINT-ETIENNE
Appartement à SAINT-ETIENNE
Appartement à SAINT-ETIENNE
Ce site est protégé par reCAPTCHA la Politique de confidentialité et les Conditions d’utilisation de Google s’appliquent.
Obtenir un prêt immobilier au meilleur taux ?

En poursuivant votre navigation sans modifier vos paramètres, vous acceptez l'utilisation de cookies susceptibles de réaliser des statistiques de visite. Cliquez ici pour plus d'informations