Bénéficiez des services de nos partenaires locaux soigneusement sélectionnés
pour vous accompagner dans votre parcours d'achat immobilier

Appartement neuf

— Saint-Cyprien 66750 —
760 000 €
93 m²
4 pièces
parkingbalcon/terrasseascenseur

Nos partenaires locaux
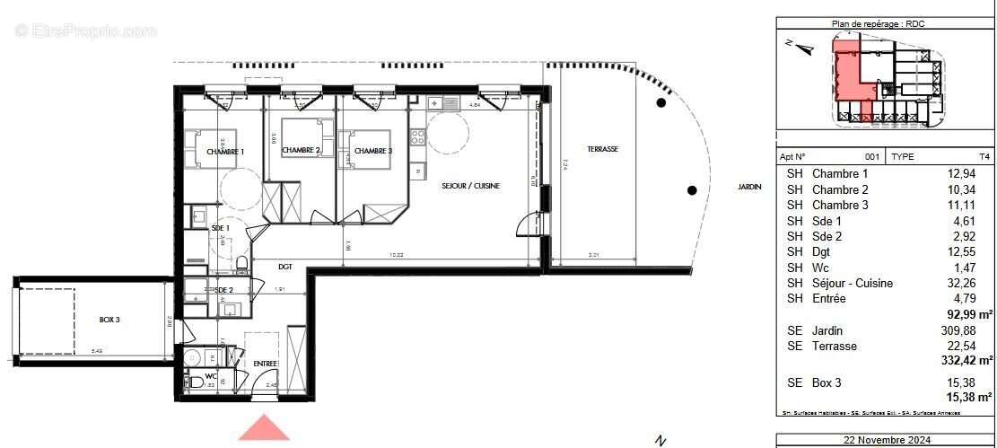
Découvrez une opportunité exceptionnelle sur la Côte Radieuse avec un tout nouveau ensemble immobilier en bord de mer à Saint-Cyprien ! Cette résidence de prestige, composée de seulement 12 appartements, a été conçue pour offrir un cadre de vie inégalé, alliant confort moderne et vues imprenables.
Nous vous présentons un appartement T4 spacieux de plus de 93 m² en rez-de-chaussée, agrémenté d'un jardin privatif de 309 m².
Profitez d'un aménagement optimisé avec de vastes espaces de vie lumineux, une cuisine, trois chambres confortables dont une suite parentale, une salle d'eau élégante avec douche à l'italienne et des toilettes indépendantes pour un confort ultime. De plus, un garage privatif et une place de parking sont inclus.
Conforme aux normes environnementales RE2020, cette résidence garantit une isolation thermique et acoustique optimale, vous assurant un confort de vie tout au long de l'année. La livraison est prévue pour le 2e trimestre 2026.
Ne laissez pas passer cette occasion unique d'acquérir un bien d'exception en bord de mer. D'autres lots T2 et T3 sont également disponibles.
Contactez-nous dès aujourd'hui pour plus d'informations et commencez à imaginer votre nouvelle vie au bord de l'eau !
Les informations sur les risques auxquels ce bien est exposé sont disponibles sur le site Géorisques : www.georisques.gouv.fr »
Voir plus

Référence: 66059366047
Bien en copropriété. Nombre de lots : 12.
Honoraires à la charge du vendeur.

Prêt immobilier

Vous souhaitez connaître votre capacité d’emprunt et trouver le meilleur crédit immobilier ?
Réaliser une simulation gratuite

Appartement à SAINT-CYPRIEN
Appartement à SAINT-CYPRIEN
Appartement à SAINT-CYPRIEN
Appartement à SAINT-CYPRIEN
Ce site est protégé par reCAPTCHA la Politique de confidentialité et les Conditions d’utilisation de Google s’appliquent.
Obtenir un prêt immobilier au meilleur taux ?

En poursuivant votre navigation sans modifier vos paramètres, vous acceptez l'utilisation de cookies susceptibles de réaliser des statistiques de visite. Cliquez ici pour plus d'informations