Bénéficiez des services de nos partenaires locaux soigneusement sélectionnés
pour vous accompagner dans votre parcours d'achat immobilier

Local commercial à bretteville-sur-odon

— Bretteville-Sur-Odon 14760 —
1 522 500 €

Nos partenaires locaux
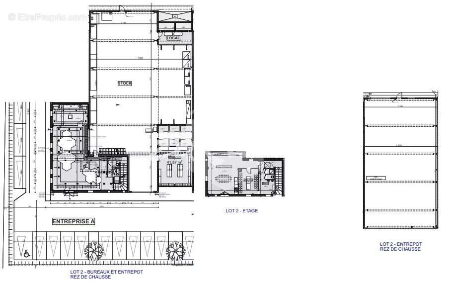
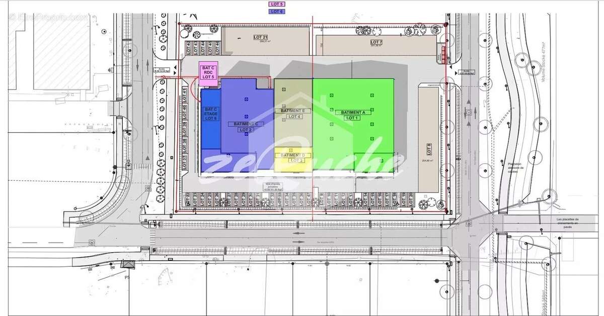
Découvrez ce nouveau bâtiment situé à Bretteville-sur-Odon. Ce bien est composé de 205 m² de bureaux et de 2 entrepôts d'une surface totale de 803 m², idéal pour vos activités professionnelles grâce à une structure moderne et fonctionnelle. Les zones de stationnement bien aménagées garantissent un accès facile pour les clients et les employés avec possibilité de création de nouvelles places de parking sur une plateforme béton existante

Le bâtiment est sécurisé par une clôture assurant la sécurité de vos locaux et de vos marchandises. À l'intérieur, les volets métalliques ajoutent une couche supplémentaire de protection tout en offrant une flexibilité dans l'aménagement de l'espace. Ce bien est parfait pour accueillir divers types d'entreprises.

Sa situation géographique, à proximité des principaux axes routiers, maximise la visibilité et l'accessibilité, ce qui en fait une opportunité à ne pas manquer pour les entrepreneurs désireux de s'installer dans la région. Ne laissez pas passer cette chance unique de développer votre activité dans un environnement dynamique et sécurisé. 1,450,000 € Honoraires d'agence non inclus - Honoraires agence: 5%TTC Honoraires à la charge de l'acquéreur Les informations sur les risques auxquels ce bien est exposé sont disponibles sur le site Géorisques : www.georisques.gouv.fr
Voir plus

Référence: 85666981
Barème des honoraires

Prêt immobilier

Vous souhaitez connaître votre capacité d’emprunt et trouver le meilleur crédit immobilier ?
Réaliser une simulation gratuite

Commerce à BRETTEVILLE-SUR-ODON
Commerce à BRETTEVILLE-SUR-ODON
Commerce à BRETTEVILLE-SUR-ODON
Commerce à BRETTEVILLE-SUR-ODON
Commerce à BRETTEVILLE-SUR-ODON
Ce site est protégé par reCAPTCHA la Politique de confidentialité et les Conditions d’utilisation de Google s’appliquent.
Obtenir un prêt immobilier au meilleur taux ?

En poursuivant votre navigation sans modifier vos paramètres, vous acceptez l'utilisation de cookies susceptibles de réaliser des statistiques de visite. Cliquez ici pour plus d'informations