Maison plain-pied 98 m2 avec garage à argentré

— Argentre 53210 —
249 000 €
98 m² / 614 m²
4 pièces
parkingjardin

Découvrez cette charmante maison de plain-pied de 98 m2 située à Argentré (12 km de Laval, première couronne) dans un lotissement.
Sa construction s'est terminée Décembre 2024.
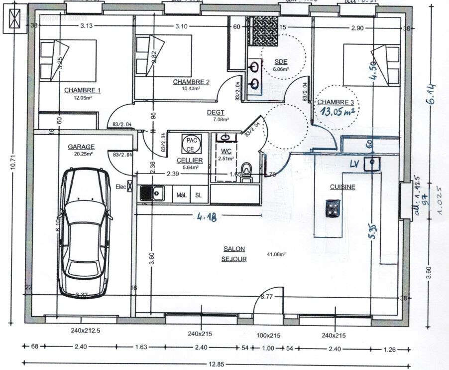
Elle offre un espace de vie lumineux de 41 m2 avec deux grandes baies vitrées exposées plein sud, une cuisine américaine entièrement équipée (plaque à induction, lave vaisselle, frigo encastré, four, micro onde, nombreux rangements).
Vous avez également trois chambres spacieuses de 13, 12 et 10 m2, une salle d'eau de 6.06 m2 avec douche à l'italienne, double vasque et sèche serviette.
La maison est équipée d'une pompe à chaleur avec ballon thermodynamique de 190 litres, assurant un confort thermique optimal avec des blocs réversibles (chauffage et climatisation).
Elle comprend un garage de 20,25 m2 et un cellier de 5,64 m2. Conçue selon les normes PMR, cette maison est idéale pour tous.
Le terrain de 614 m2 vas être aménagé avec une terrasse bois et une pelouse pour Octobre 2025.
Ne manquez pas cette opportunité unique !
Cette annonce vous est proposée par Saunière Jérôme - EI - NoRSAC: 885027722, Enregistré à Greffe du tribunal de commerce de Laval - Annonce rédigée et publiée par un Agent Mandataire -
Voir plus

Référence: 2081
Honoraires à la charge du vendeur.
DPE
A
B
C
D
E
F
G
GES
A
B
C
D
E
F
G

Prêt immobilier

Vous souhaitez connaître votre capacité d’emprunt et trouver le meilleur crédit immobilier ?
Réaliser une simulation gratuite

Maison à ARGENTRE
Maison à ARGENTRE
Maison à ARGENTRE
Maison à ARGENTRE
Maison à ARGENTRE
Maison à ARGENTRE
Maison à ARGENTRE
Maison à ARGENTRE
Maison à ARGENTRE
Maison à ARGENTRE
Maison à ARGENTRE
Ce site est protégé par reCAPTCHA la Politique de confidentialité et les Conditions d’utilisation de Google s’appliquent.
Obtenir un prêt immobilier au meilleur taux ?

En poursuivant votre navigation sans modifier vos paramètres, vous acceptez l'utilisation de cookies susceptibles de réaliser des statistiques de visite. Cliquez ici pour plus d'informations