Bénéficiez des services de nos partenaires locaux soigneusement sélectionnés
pour vous accompagner dans votre parcours d'achat immobilier

Descriptif de l'appartement a vendre 2 pieces 1 minute

— Paris-8e 75008 —
499 000 €
60 m²
2 pièces

Nos partenaires locaux
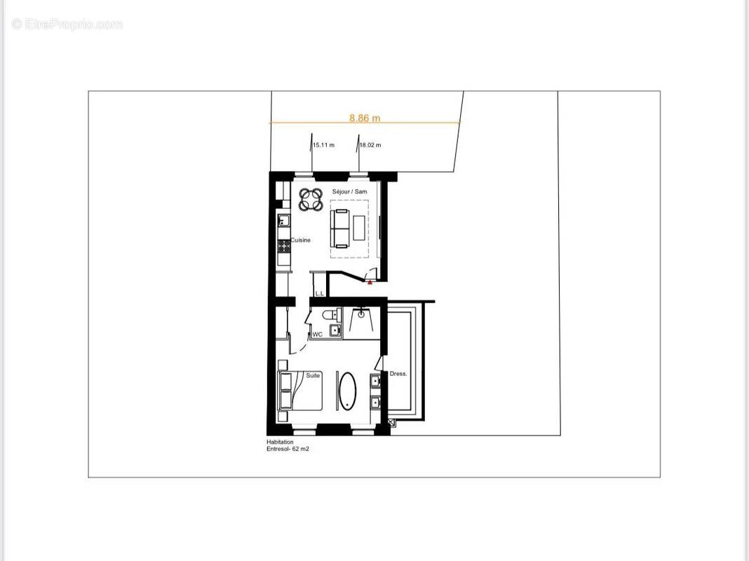
Situe en plein coeur de Paris, a seulement 1 minute a pied de la prestigieuse place Madeleine, cet appartement de 2 pieces est une veritable opportunite pour les amateurs de projets immobiliers. Avec une surface de *60 m2 (loi Carrez)*, ce bien offre un espace genereux et un potentiel a exploiter dans l'un des quartiers les plus prises de la capitale.
Caracteristiques principales : - Surface : 60 m2 (loi Carrez) - 2 pieces a reconfigurer selon vos envies - Hauteur sous plafond : 2.20 metres entre les poutres - A refaire entierement : murs, sols, electricite, plomberie, etc. - Possibilite de creer une salle de bain et des toilettes independantes - Situation : immeuble parisien typique, dans une rue calme et residentielle
Projet de renovation : Cet appartement est une toile blanche pour les passionnes de decoration ou les investisseurs. Il necessite une renovation complete, ce qui vous permet de personnaliser chaque espace selon vos gouts et besoins. Vous pourrez : - Creer une salle de bain moderne et fonctionnelle - Amenager des toilettes separees - Repenser la distribution des pieces pour optimiser l'espace - Installer une cuisine ouverte ou semi-ouverte - Choisir des materiaux haut de gamme pour une finition elegante
Atouts du bien : - Emplacement exceptionnel a 1 minute de la place Madeleine - Surface genereuse de 60 m2 (loi Carrez), ideale pour un couple ou un investissement locatif - Quartier vivant et prestigieux, proche des sites emblematiques de Paris (Opera Garnier, Concorde, etc.) - Ideal pour un investissement locatif (demande forte pour les locations courtes ou longues durees) ou une residence principale - Immeuble parisien avec charme et potentiel de valorisation
Informations supplementaires : - Prix : sur demande (a definir selon le marche et l'etat du bien) - Charges annuelles : a confirmer - Taxe fonciere : a estimer - Copropriete : nombre de lots et etat a verifier Ce bien rare dans un tel secteur est une occasion unique de creer un appartement sur mesure dans l'un des quartiers les plus prises de Paris. Parfait pour un investisseur ou un particulier pret a se lancer dans un projet de renovation. Contactez-nous des maintenant pour une visite et des informations complementaires !
Voir plus

Référence: 1_287

Prêt immobilier

Vous souhaitez connaître votre capacité d’emprunt et trouver le meilleur crédit immobilier ?
Réaliser une simulation gratuite

Appartement à PARIS-8E
Appartement à PARIS-8E
Appartement à PARIS-8E
Appartement à PARIS-8E
Appartement à PARIS-8E
Appartement à PARIS-8E
Appartement à PARIS-8E
Appartement à PARIS-8E
Appartement à PARIS-8E
Appartement à PARIS-8E
Appartement à PARIS-8E
Appartement à PARIS-8E
Ce site est protégé par reCAPTCHA la Politique de confidentialité et les Conditions d’utilisation de Google s’appliquent.
Obtenir un prêt immobilier au meilleur taux ?

En poursuivant votre navigation sans modifier vos paramètres, vous acceptez l'utilisation de cookies susceptibles de réaliser des statistiques de visite. Cliquez ici pour plus d'informations