Bénéficiez des services de nos partenaires locaux soigneusement sélectionnés
pour vous accompagner dans votre parcours d'achat immobilier

Appartement t3 de 72 m2

— Bourgoin-Jallieu 38300 —
272 000 €
72 m²
3 pièces
parking

Nos partenaires locaux
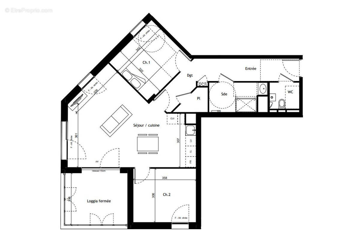
Magnifique appartement T3 de 72,67 m2 situé à Bourgoin-Jallieu (38300).
Cet appartement au rez-de-chaussée se compose :

D'un vaste séjour-cuisine de 30,33 m2
De 2 chambres : 10,87 m2 et 10,96 m2
D'une salle de bain de 5,07 m2
D'un WC séparé de 2,55 m2
D'une entrée de 4,63 m2
D'un dégagement de 6,40 m2
D'un placard de 1,85 m2
D'une loggia fermée de 10,54 m2

Prestations de qualité :

Carrelage 45x45 cm avec plinthes assorties dans toutes les pièces sauf chambres
Revêtement stratifié dans les chambres
Brise-soleil orientables motorisés
Chauffage et eau chaude individuels par chaudière gaz à condensation
Meuble de salle de bains avec plan vasque, miroir rétroéclairé
Sèche-serviettes dans la salle de bain
Placards équipés d'une tablette chapelière et d'une tringle
Cuisine équipée avec meubles hauts et bas, plan de travail, plaque vitrocéramique 3 feux, hotte aspirante
Visiophone couleur et badge Vigik

La résidence sécurisée offre :

3 immeubles de 3 à 4 étages
49 logements au total
Ascenseur desservant tous les niveaux
Parkings en sous-sol
Cœur d'îlot paysager
Locaux vélos dans chaque bâtiment

Situation idéale au cœur du quartier Saint Michel de Bourgoin-Jallieu, à proximité :

De la place Carnot et son marché
Des commerces, cinémas, cafés et restaurants
Du musée et de la médiathèque
De la gare (7 min à pied)
De la mairie (10 min à pied)

La résidence répond aux exigences de la réglementation thermique RT2012 avec une performance RT2012 -20%.
Pour plus d'informations et pour planifier une visite : [Coordonnées masquées] (appel non surtaxé)
Informations LOI ALUR :

Statut du négociateur : Agent immobilier
Classe énergie et climat : B
Montant estimé des dépenses annuelles d'énergie pour un usage standard : NC
Bien soumis au statut de la copropriété
Nombre de logements : 27
Les honoraires sont à la charge du vendeur
Quote part annuelle (moyenne) : NC

Les informations sur les risques auxquels ce bien est exposé sont disponibles sur le site Géorisques : www.georisques.gouv.fr
Saisissez cette occasion exceptionnelle dès maintenant ! Pour de plus amples informations et pour planifier une visite, veuillez contacter Maxime, votre agent immobilier au [Coordonnées masquées].
Voir plus

Honoraires à la charge du vendeur.
Barème des honoraires
DPE
A
B
C
D
E
F
G
GES
A
B
C
D
E
F
G

Prêt immobilier

Vous souhaitez connaître votre capacité d’emprunt et trouver le meilleur crédit immobilier ?
Réaliser une simulation gratuite

Appartement à BOURGOIN-JALLIEU
Appartement à BOURGOIN-JALLIEU
Ce site est protégé par reCAPTCHA la Politique de confidentialité et les Conditions d’utilisation de Google s’appliquent.
Obtenir un prêt immobilier au meilleur taux ?

En poursuivant votre navigation sans modifier vos paramètres, vous acceptez l'utilisation de cookies susceptibles de réaliser des statistiques de visite. Cliquez ici pour plus d'informations