Bénéficiez des services de nos partenaires locaux soigneusement sélectionnés
pour vous accompagner dans votre parcours d'achat immobilier

Maison de village avec son jardin

— Bully 42260 —
75 600 €
92 m² / 305 m²
4 pièces
jardin

Nos partenaires locaux
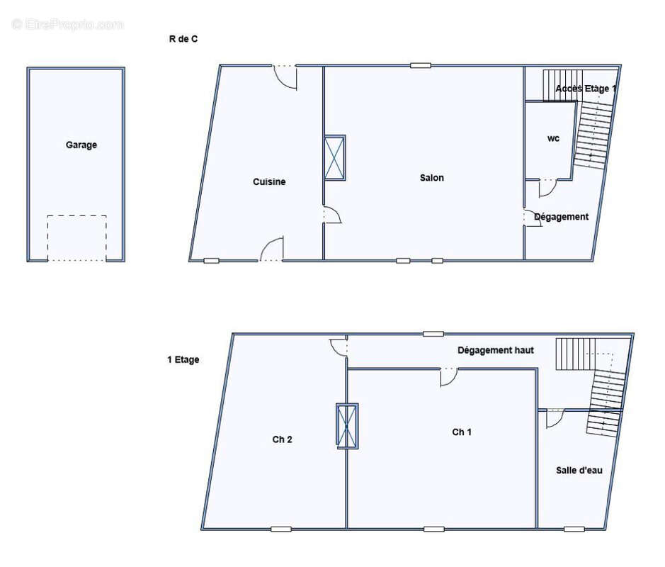
A découvrir sans tarder ! Située sur la commune de Bully, à seulement 20 minutes de Roanne et 30 minutes de Feurs et Saint-Just-en-Chevalet, cette charmante maison de village à rénover offre un beau potentiel. D'une superficie de 92 m² habitables, elle se compose de : Rez-de-chaussée : Cuisine, salon et WC Étage : 2 chambres et une salle d'eau A l'extérieur, vous trouverez : Un terrain attenant entièrement clôturé Un puits Un chapis recouvrant une terrasse Un garage La maison est équipée d'un système de chauffage avec chaudière électrique. Logement à consommation énergétique excessive (DPE classe G). Montant estimé des dépenses annuelles d'énergie : entre 3 070 euros et 4 200 euros (selon les prix moyens indexés au 1er janvier 2021, abonnement compris). Prix : 75 600 euros FAI (Honoraires à la charge du vendeur). Coralie CHOMARAT au [Coordonnées masquées] Retrouvez l'ensemble de nos biens à la vente et à la location sur notre site : www.marcoux-immobilier.fr
Voir plus

Référence: T1489
Honoraires à la charge du vendeur.
Barème des honoraires
DPE
A
B
C
D
E
F
G
GES
A
B
C
D
E
F
G
Maison à BULLY
Maison à BULLY
Maison à BULLY
Maison à BULLY
Maison à BULLY
Maison à BULLY
Maison à BULLY
Maison à BULLY
Maison à BULLY
Maison à BULLY
Maison à BULLY
Maison à BULLY
Maison à BULLY
Maison à BULLY
Maison à BULLY
Maison à BULLY
Maison à BULLY
Géorisques

Les informations sur les risques auxquels ce bien est exposé sont disponibles sur le site Géorisques : www.georisques.gouv.fr

Ce site est protégé par hCaptcha Politique de confidentialité et Conditions d’utilisation s’appliquent.

En poursuivant votre navigation sans modifier vos paramètres, vous acceptez l'utilisation de cookies susceptibles de réaliser des statistiques de visite. Cliquez ici pour plus d'informations