Bénéficiez des services de nos partenaires locaux soigneusement sélectionnés
pour vous accompagner dans votre parcours d'achat immobilier

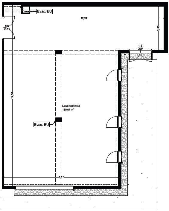
Franqueville-saint-pierre 76520, local commercial de 130 m2

— Franqueville-Saint-Pierre 76520 —
320 000 €
130 m²

Nos partenaires locaux
UNE OPPORTUNITE RARE POUR UN PROJET SUR MESURE, SUR UN SECTEUR DYNAMIQUE !

MURS COMMERCIAUX A VENDRE - 130 m2 - PLATEAU EST DE ROUEN
Idéalement situés sur le Plateau Est de Rouen, ces murs commerciaux en rez-de-chaussée offrent une surface de 130 m2, idéale pour une activité professionnelle secteur tertiaire.

CARACTERISTIQUES DU BIEN :
- Local neuf livré brut de béton, à aménager selon vos besoins
- Hors d'eau et hors d'air, avec fluides et évacuations en attente
- Conforme aux normes PMR (Personnes à Mobilité Réduite)
- 2 places de parking extérieures incluses

CONDITIONS DE VENTE :
- Prix net vendeur : 307 500 € HT
- Honoraires à la charge de l'acquéreur : 12 500 € HT
- Fiscalité : assujetti à la TVA

Les informations sur les risques auxquels ce bien est exposé sont disponibles sur le site Géorisques : www.georisques.gouv.fr
Honoraires charge acquéreur.
Gilles LECONTE - EI - agent commercial inscrit au RSAC de Rouen sous le No514172782.
Voir plus

Référence: 774
Barème des honoraires

Prêt immobilier

Vous souhaitez connaître votre capacité d’emprunt et trouver le meilleur crédit immobilier ?
Réaliser une simulation gratuite

Commerce à FRANQUEVILLE-SAINT-PIERRE
Commerce à FRANQUEVILLE-SAINT-PIERRE
Commerce à FRANQUEVILLE-SAINT-PIERRE
Ce site est protégé par reCAPTCHA la Politique de confidentialité et les Conditions d’utilisation de Google s’appliquent.
Obtenir un prêt immobilier au meilleur taux ?

En poursuivant votre navigation sans modifier vos paramètres, vous acceptez l'utilisation de cookies susceptibles de réaliser des statistiques de visite. Cliquez ici pour plus d'informations