Maison centre ville margency

— Margency 95580 —
395 000 €
114 m²
5 pièces

Je vous propose une petite perle.
(On s'est juré de ne plus utiliser le terme « bien d'exception »).
A 200m de la forêt de Montmorency, en ayant les commerces (pharmacie, boulangerie, épicerie..,), la mairie, les arrêts de bus et l'école privée Notre Dame de Bury accessibles à pied. La localisation est à 10 minutes de la gare Ermont/ Eaubonne RER C, trains directs pour Gare Saint-Lazare et Gare du Nord. 4Km du lac Enghien.

En plein cœur du quartier des peintres. Située au calme, au fond d'une impasse d'une résidence privée et sécurisée.
Cette maison de 114 m² habitable (135 m² en surface au sol avec le garage), très bien entretenue. Construite dans les années 70 a su garder tous les codes de cette époque (belle hauteur sous plafond, menuiseries sur mesure, grandes ouvertures vers l'extérieur et matériaux nobles).
Très lumineuse et exposée Sud/ouest, terrasse et jardin de 200M2 env. sans aucun vis à vis.
Cette maison d'architecte est constituée d'une entrée, d'une très belle pièce à vivre de 35m2 avec un toit cathédrale et d'une cheminée en brique donnant de plain-pied sur le jardin, d'une cuisine indépendante de 12m2, de deux chambres avec chacune sa mezzanine, d'une grande salle de bain avec douche et baignoire de 5m2, d'un WC indépendant et d'un accès direct au garage complètent le rez de chaussée.
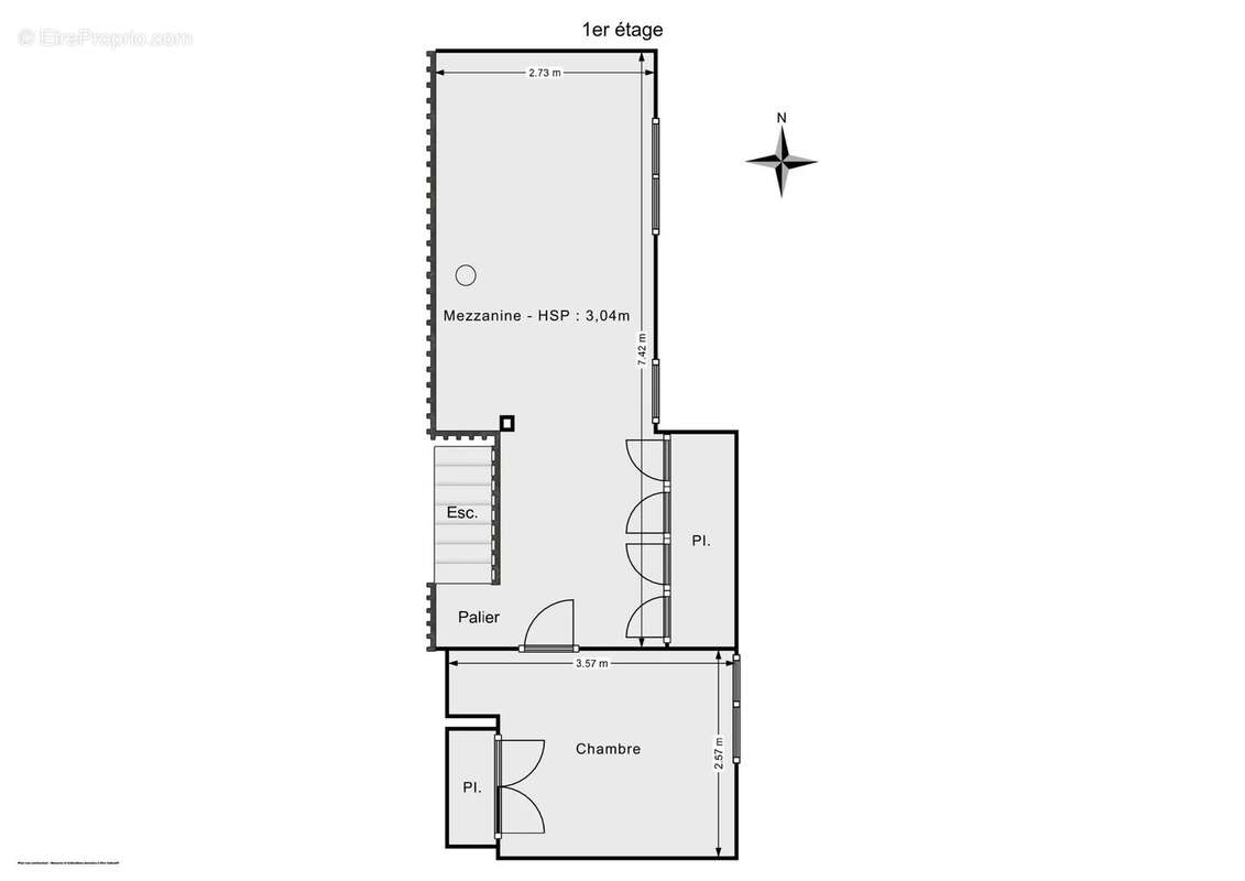
Au 1er étage on trouve une grande mezzanine ouverte sur la pièce à vivre et une 3e chambre plus un très grand palier (bureau) pouvant faire l'objet d'aménagements.

Vous bénéficierez de 2 jardins avec une terrasse de 40m² ou les repas entre amis auront une autre saveur.
La maison bénéficie également d'un garage et d'un stationnement devant ce garage.
Voir plus

Référence: 85709627
GES
A
B
C
D
E
F
G

Prêt immobilier

Vous souhaitez connaître votre capacité d’emprunt et trouver le meilleur crédit immobilier ?
Réaliser une simulation gratuite

Maison à MARGENCY
Maison à MARGENCY
Maison à MARGENCY
Maison à MARGENCY
Maison à MARGENCY
Maison à MARGENCY
Maison à MARGENCY
Maison à MARGENCY
Maison à MARGENCY
Maison à MARGENCY
Maison à MARGENCY
Maison à MARGENCY
Maison à MARGENCY
Maison à MARGENCY
Maison à MARGENCY
Maison à MARGENCY
Maison à MARGENCY
Maison à MARGENCY
Maison à MARGENCY
Maison à MARGENCY
Maison à MARGENCY
Maison à MARGENCY
Maison à MARGENCY
Ce site est protégé par reCAPTCHA la Politique de confidentialité et les Conditions d’utilisation de Google s’appliquent.
Obtenir un prêt immobilier au meilleur taux ?

En poursuivant votre navigation sans modifier vos paramètres, vous acceptez l'utilisation de cookies susceptibles de réaliser des statistiques de visite. Cliquez ici pour plus d'informations