Appartement 64m² à saint-estève

— Saint-Esteve 66240 —
159 000 €
64 m²
3 pièces
parkingpiscine

Bienvenue aux portes de Saint-Estève, à quelques minutes de Perpignan, au "Domaine d'Aguzan".
Cette copropriété construite en 2005 est composée de plusieurs ilots d'habitations.
Avec son accès sécurisé, sa piscine privée et son gardien, cette résidence de bon standing représente l'art de vivre à la catalane.

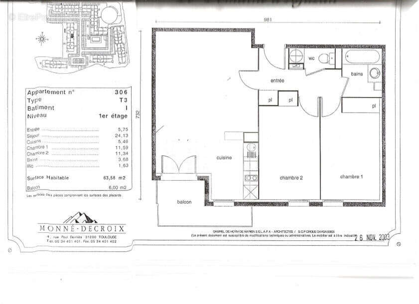
Situé au premier étage (sans ascenseur) sur deux seulement, l'appartement que nous vous proposons à l'achat comprend :
- Une entrée avec un placard
- Un séjour lumineux avec une cuisine ouverte aménagée et équipée (frigidaire, congélateur, plaque électrique, hotte, lave vaisselle et lave linge) et accès à un balcon où on peut facilement y installer une table pour déjeuner au soleil
- Un toilette séparé avec placard abritant le ballon d'eau chaude
- Deux chambres avec placards
- Une salle de bain

Deux places de parking privatives dont une sous pergola sont rattachées à l'appartement pour une sérénité de stationnement.

Après un léger rafraichissement (peintures principalement), ce bien recherché ravira aussi bien une petite famille, des retraités ou un investisseurs en quête d'un achat de qualité et dans un environnement agréable.

En plein coeur de la zone d'échanges européens, Saint-Estève se trouve à proximité directe de :
Perpignan et la gare SNCF (à 4 Km),
L'autoroute A9,
L'aéroport de Rivesaltes-Perpignan,
La montagne et la mer.

Située à l'extrême sud de la France, elle fait partie de la plaine du Roussillon et est cernée par la chaîne des Albères au sud, des Corbières au Nord, le Mont Canigou à l'Ouest et la mer Méditerranée à l'Est.

Commune de 11 884 habitants, d'une superficie de 1167 hectares, Saint Estève se positionne parmi les 3 communes les plus importantes du département des Pyrénées Orientales.

Ville active, dynamique et urbaine, avec une agriculture toujours présente, Saint-Estève est une ville qui offre un cadre de vie de qualité.
L'Etat des Risques et Pollution peut être consulté sur https://www.georisques.gouv.fr
Voir plus

Référence: 753
DPE
A
B
C
D
E
F
G
GES
A
B
C
D
E
F
G
Appartement à SAINT-ESTEVE
Appartement à SAINT-ESTEVE
Appartement à SAINT-ESTEVE
Appartement à SAINT-ESTEVE
Appartement à SAINT-ESTEVE
Appartement à SAINT-ESTEVE
Appartement à SAINT-ESTEVE
Appartement à SAINT-ESTEVE
Appartement à SAINT-ESTEVE
Appartement à SAINT-ESTEVE
Appartement à SAINT-ESTEVE
Appartement à SAINT-ESTEVE
Appartement à SAINT-ESTEVE
Appartement à SAINT-ESTEVE
Appartement à SAINT-ESTEVE
Géorisques

Les informations sur les risques auxquels ce bien est exposé sont disponibles sur le site Géorisques : www.georisques.gouv.fr

Ce site est protégé par hCaptcha Politique de confidentialité et Conditions d’utilisation s’appliquent.

En poursuivant votre navigation sans modifier vos paramètres, vous acceptez l'utilisation de cookies susceptibles de réaliser des statistiques de visite. Cliquez ici pour plus d'informations