Bénéficiez des services de nos partenaires locaux soigneusement sélectionnés
pour vous accompagner dans votre parcours d'achat immobilier

Appartement standing résidence neuve

— Pau 64000 —
275 000 €
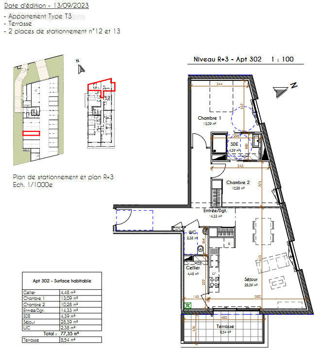
77 m²
3 pièces
parkingbalcon/terrasse

Nos partenaires locaux
Dossier no ECVAP100001185
Nouvelle résidence à Pau , travaux en cours de finalisation. A vous de jouer ! L'appartement de vos rêves !
Les photos meublées sont généres par IA . Photos non contractuelles.
L'appartement :
Un magnifique appartement T3 avec 8.54 m2 de balcon. Découvrez ce magnifique appartement neuf de 77.35 m2 avec un séjour de plus de 28 m2. 2 chambres.
Présentation de l’Opération
• La Résidence se situe au Nord de Pau idéalement placée dans quartier prisé, face à l’hippodrome.
• Elle est composée de 20 appartements repartis en un seul bâtiment en R+4.
• Les appartements vont du T2 au T5, de 44m2 à 130 m2 avec de belles terrasses. (voir grille de prix en photo)
• Ils sont répartis du R+1 au R+3.
• Le rez-de-chaussée semi-enterré est destiné aux stationnements et local 2 roues. Il est accessible par une rampe depuis le Boulevard du Cami Salié.
• Caractéristiques générales
o La résidence est fermée et sécurisée par visiophone électronique.
o Les appartements sont confortables, tournés vers l’extérieur, lumineux avec des larges baies vitrées permettant de bénéficier d’une belle vue et d’un ensoleillement maximal.
o Tous les appartements possèdent des terrasses allant de 9m2 à 64m2.
o Certains appartements bénéficient d’un jardin privatif accessible du R+1 par un escalier extérieur.

Equipements des appartements


Chauffage individuel par plancher chauffant avec générateur gaz à condensation.
Production d’eau chaude sanitaire associée au générateur gaz.
Robinet extérieur sur chaque terrasse
Salles de bains équipées (vasque avec tablette sur meuble, miroir, bandeau lumineux, sèche serviette, douche à l’italienne avec pare douche en verre, wc suspendu).
Cuisines non équipées, laissées au choix des futures occupants. Sont prévus les branchements en attente pour l’évier, l’arrivée du gaz ou de l’électricité pour les plaques de cuisson (au choix du client), le lave-linge (cellier), le lave-vaisselle, le frigo.
Antenne hertzienne collective en toiture pour réception collective des chaînes de la TNT.
Contrôle d’accès par interphonie/visiophonie à l’entrée de la résidence.
Sols en carrelages (45x45) dans toutes les pièces sauf la chambre principale
Plancher en bois collé pour la chambre principale
Revêtements de sol compatibles avec le plancher chauffant.
Plafonds : peinture acrylique mate blanche
Murs des pièces sèches : peinture acrylique satinée
Murs salles de bains : Faïences (hauteur variable)
Parkings semi-enterrés :

Boxes et parkings individualisés avec places numérotées
Boxes fermés par portes sectionnelles ou enroulable selon possibilités techniques
Clôtures séparatives des jardins par grillage de hauteur 180 cm
Choix des coloris dans la gamme choisie par le promoteur avant le démarrage des travaux.




Travaux Modificatifs Acquéreurs (TMA)



Les travaux modificatifs acquéreurs seront autorisés en fonction de l’acceptation, de la compatibilité technique et de l’état d’avancement du projet et après validation de l’architecte et du Maître d’Ouvrage.
Toutes demandes de TMA, ainsi que les heures supplémentaires d’assistance de l’architecte postérieures, à la signature de l’acte authentique d’achat seront payables à hauteur de 50% à la signature de la Convention de TMA, le solde à la livraison de l’immeuble.

Demandez nous plus d'informations sur les lots et descriptifs.
Les photos meublées sont généres par IA . Photos non contractuelles. - Annonce rédigée et publiée par un Agent Mandataire -
Voir plus

Bien en copropriété.
DPE
A
B
C
D
E
F
G
GES
A
B
C
D
E
F
G

Prêt immobilier

Vous souhaitez connaître votre capacité d’emprunt et trouver le meilleur crédit immobilier ?
Réaliser une simulation gratuite

Appartement à PAU
Appartement à PAU
Appartement à PAU
Appartement à PAU
Appartement à PAU
Appartement à PAU
Appartement à PAU
Appartement à PAU
Appartement à PAU
Appartement à PAU
Appartement à PAU
Appartement à PAU
Appartement à PAU
Ce site est protégé par reCAPTCHA la Politique de confidentialité et les Conditions d’utilisation de Google s’appliquent.
Obtenir un prêt immobilier au meilleur taux ?

En poursuivant votre navigation sans modifier vos paramètres, vous acceptez l'utilisation de cookies susceptibles de réaliser des statistiques de visite. Cliquez ici pour plus d'informations