Bénéficiez des services de nos partenaires locaux soigneusement sélectionnés
pour vous accompagner dans votre parcours d'achat immobilier

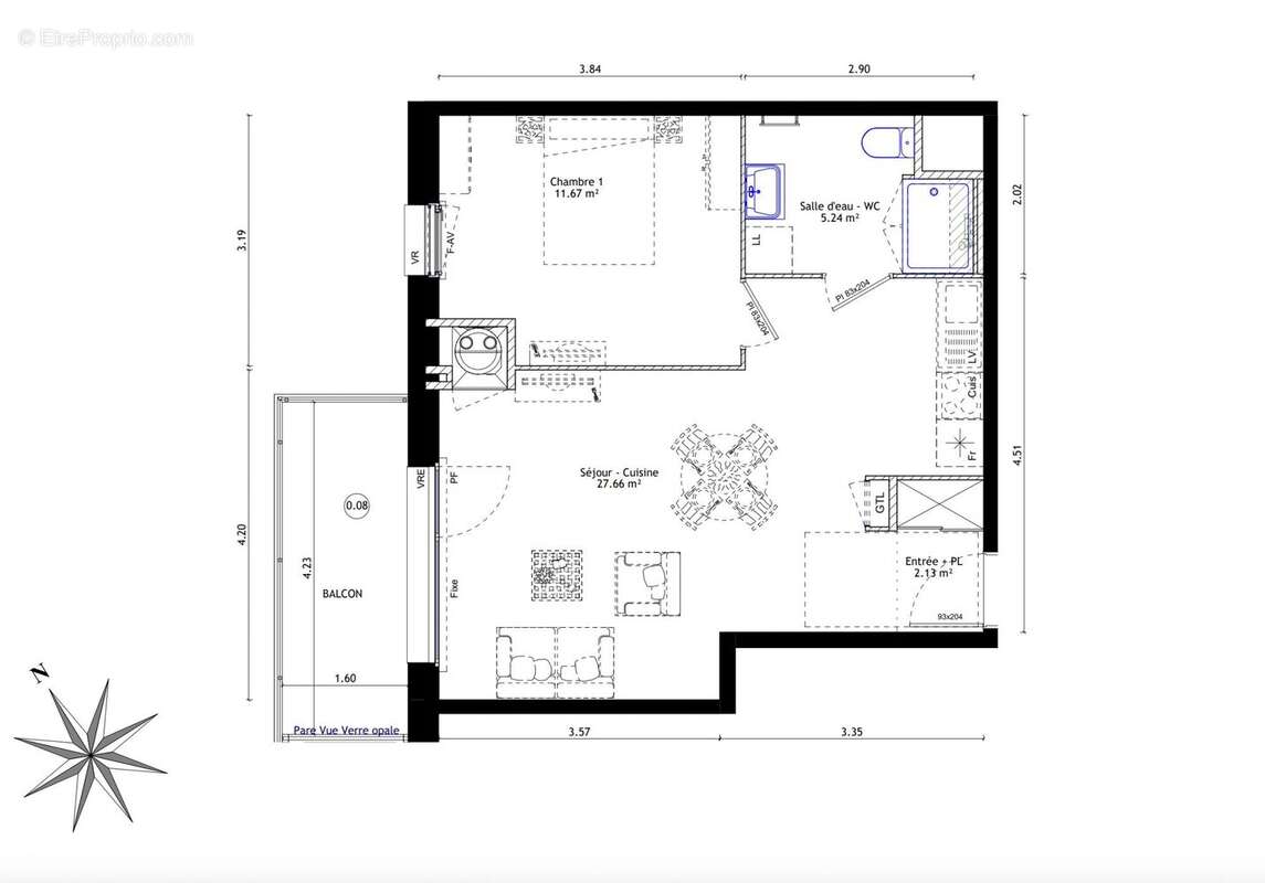
Appartement 44 m² à Bain-De-Bretagne

— Bain-De-Bretagne 35470 —
146 000 €
44 m²
2 pièces
parkingbalcon/terrasseascenseur

Nos partenaires locaux
LE QUAI à BAIN DE BRETAGNE - 2ème PHASE

Découvrez notre nouvelle résidence neuve idéalement située à Bain de Bretagne : que vous cherchiez un appartement de 2, 3 ou 4 pièces, vous trouverez chez nous l'espace idéal pour créer votre cocon familial ou vivre une vie paisible.

Cet appartement est un T2 de 46m2 situé au 2ème étage. Il se compose d'une entrée, une pièce de vie ouvrant sur un balcon exposé ouest, une chambre, une salle d'eau avec WC.

Vous disposerez également d'une place de stationnement.

Chaque logement a été conçu avec soin pour offrir des espaces de vie fonctionnels, lumineux et spacieux, où chaque détail a été pensé pour votre confort.

Le Quai vous offre un cadre de vie idéal.
Profitez d'un accès facile aux commerces, aux écoles et aux transports en commun, tout en étant entouré d'espaces verts préservés.
Pour toutes informations complémentaires, prenez contact avec nous !
D'autres lots sont encore disponibles pour une livraison 4e trimestre 2027. Plans non contractuels.

Honoraires à la charge du vendeur. Dans une copropriété de 128 lots. Aucune procédure n'est en cours. Classe énergie A, Classe climat A Montant moyen estimé des dépenses annuelles d'énergie pour un usage standard, établi à partir des prix de l'énergie de l'année 2021 : entre 300.00 et 500.00 €. Les informations sur les risques auxquels ce bien est exposé sont disponibles sur le site Géorisques : georisques.gouv.fr.
.
Les informations sur les risques auxquels ce bien est exposé sont disponibles sur le site Géorisques : www.georisques.gouv.fr

Lemoine Beunet immobilier, votre agence immobilière à Bain de Bretagne !

Descriptif complet de nos biens immobilier à Bain de Bretagne et alentours sur le site de Lemoine Beunet immobilier.
Voir plus

Référence: CL2402-1355-CLACK
Bien en copropriété. Nombre de lots : 128.
Honoraires à la charge du vendeur.
Barème des honoraires
DPE
A
B
C
D
E
F
G
GES
A
B
C
D
E
F
G
Appartement à BAIN-DE-BRETAGNE
Appartement à BAIN-DE-BRETAGNE
Appartement à BAIN-DE-BRETAGNE
Appartement à BAIN-DE-BRETAGNE
Géorisques

Les informations sur les risques auxquels ce bien est exposé sont disponibles sur le site Géorisques : www.georisques.gouv.fr

Ce site est protégé par hCaptcha Politique de confidentialité et Conditions d’utilisation s’appliquent.

En poursuivant votre navigation sans modifier vos paramètres, vous acceptez l'utilisation de cookies susceptibles de réaliser des statistiques de visite. Cliquez ici pour plus d'informations