Bénéficiez des services de nos partenaires locaux soigneusement sélectionnés
pour vous accompagner dans votre parcours d'achat immobilier

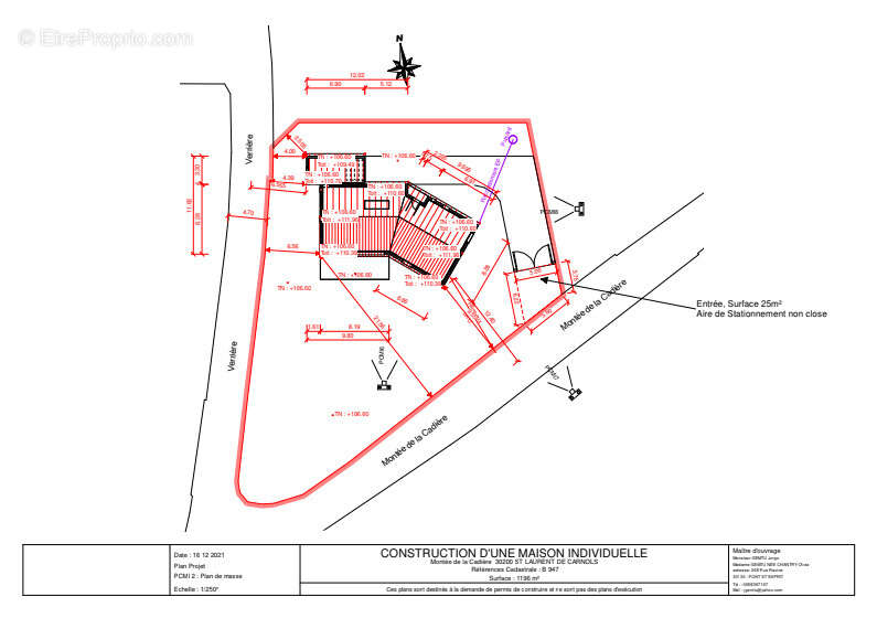
Terrain à bâtir à Saint-Laurent-de-Carnols

— Saint-Laurent-De-Carnols 30200 —
120 000 €
1 196 m²
jardin

Nos partenaires locaux
Situé sur la commune de Saint-Laurent-de-Carnols, ce terrain à bâtir de 1196 m2 est borné, partiellement clôturé et arboré.
Un permis de construire a été déposé pour une maison de 128 m2 avec garage et terrasse.
L'étude de sol G2 a été réalisée et le coût de la taxe d'aménagement de 5900 euros a été réglé.
La viabilité est à proximité.

N'hésitez pas à nous contacter au [Coordonnées masquées] si vous êtes intéressé.

Honoraires à la charge du vendeur.
Barème des honoraires
Terrain à SAINT-LAURENT-DE-CARNOLS
Terrain à SAINT-LAURENT-DE-CARNOLS
Terrain à SAINT-LAURENT-DE-CARNOLS
Terrain à SAINT-LAURENT-DE-CARNOLS
Géorisques

Les informations sur les risques auxquels ce bien est exposé sont disponibles sur le site Géorisques : www.georisques.gouv.fr

Ce site est protégé par hCaptcha Politique de confidentialité et Conditions d’utilisation s’appliquent.

En poursuivant votre navigation sans modifier vos paramètres, vous acceptez l'utilisation de cookies susceptibles de réaliser des statistiques de visite. Cliquez ici pour plus d'informations