Bénéficiez des services de nos partenaires locaux soigneusement sélectionnés
pour vous accompagner dans votre parcours d'achat immobilier

Ne manquez pas cette offre !

— Saint-Loubes 33450 —
280 000 €
185 m² / 2 251 m²
9 pièces
jardin

Nos partenaires locaux
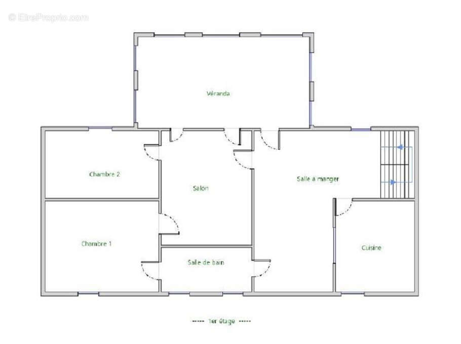
En exclusivité à Saint-Loubès, cette demeure de maître en pierre de taille s'impose par son architecture et ses volumes rares. Elevée sur trois niveaux, la maison dispose au rez-de-chaussée d'une cuisine semi-ouverte sur la salle à manger, d'un salon indépendant, d'une véranda orientée plein sud, ainsi que de deux chambres et d'une salle de bains. L'étage, dont la présentation est plus ancienne, offre un potentiel important avec une grande pièce sous plafond cathédrale et poutres apparentes, un bureau, trois chambres et deux salles d'eau. Pas de murs porteurs ce qui vous permet d'envisager de repenser l'espace. Un sous-sol total + un garage et espaces d'atelier complète l'ensemble sur une parcelle arborée de plus de 2000 m². Concernant les prestations techniques, l'immeuble nécessite des travaux de mise aux normes, notamment sur le système d'assainissement individuel, le remplacement ou la restauration des menuiseries en bois et la mise en conformité des installations générales. Bien que située à proximité d'une voie ferrée, cette propriété reste habitable immédiatement et constitue une opportunité patrimoniale solide.
Voir plus

Honoraires à la charge du vendeur.
Barème des honoraires
DPE
A
B
C
D
E
F
G
GES
A
B
C
D
E
F
G
Maison à SAINT-LOUBES
Maison à SAINT-LOUBES
Maison à SAINT-LOUBES
Maison à SAINT-LOUBES
Maison à SAINT-LOUBES
Maison à SAINT-LOUBES
Maison à SAINT-LOUBES
Maison à SAINT-LOUBES
Maison à SAINT-LOUBES
Maison à SAINT-LOUBES
Maison à SAINT-LOUBES
Maison à SAINT-LOUBES
Maison à SAINT-LOUBES
Maison à SAINT-LOUBES
Maison à SAINT-LOUBES
Maison à SAINT-LOUBES
Maison à SAINT-LOUBES
Maison à SAINT-LOUBES
Géorisques

Les informations sur les risques auxquels ce bien est exposé sont disponibles sur le site Géorisques : www.georisques.gouv.fr

Ce site est protégé par hCaptcha Politique de confidentialité et Conditions d’utilisation s’appliquent.

En poursuivant votre navigation sans modifier vos paramètres, vous acceptez l'utilisation de cookies susceptibles de réaliser des statistiques de visite. Cliquez ici pour plus d'informations