Bénéficiez des services de nos partenaires locaux soigneusement sélectionnés
pour vous accompagner dans votre parcours d'achat immobilier

Maison fontainebleau 8avec jardin

— Fontainebleau 77300 —
785 000 €
171 m² / 264 m²
8 pièces
jardin

Nos partenaires locaux
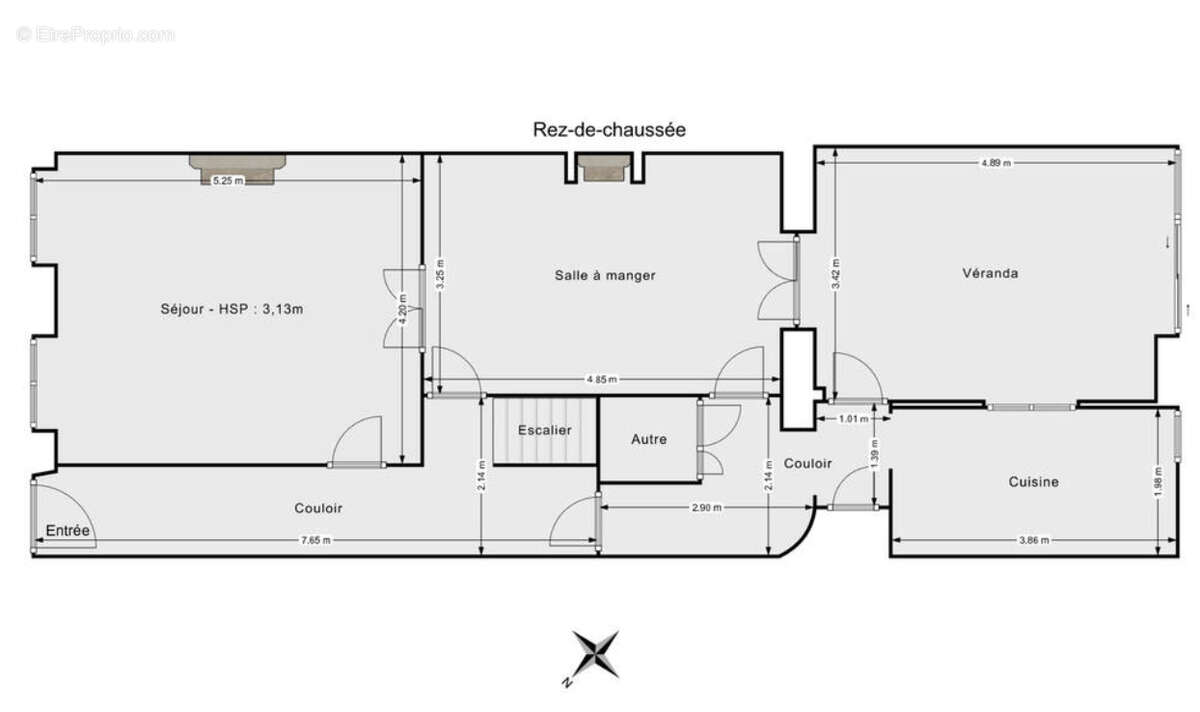
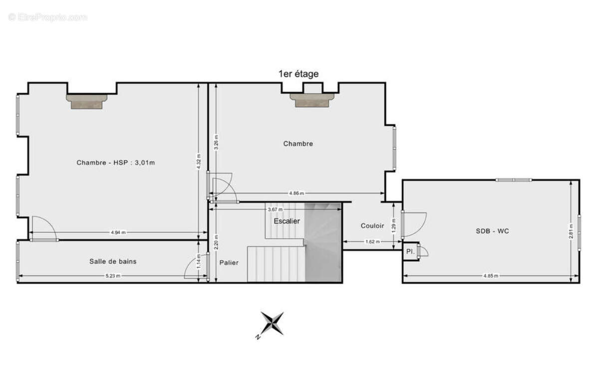
Fontainebleau Immobilier a le plaisir de vous présenter cette maison bourgeoise. Moulures aux plafonds, son parquet au sol apporte un cachet supplémentaire. Cette maison est idéalement située, à deux rues du Parc du Château de Fontainebleau, poche des commerces et des écoles, un emplacement privilégié au coeur de Fontainebleau. Une entrée, un triple séjour lumineux, une cuisine séparée, tourné vers le jardin clos de murs, un jardin verdoyant et arboré, sans vis à vis idéal pour profiter des journées ensoleillées. Un superbe escalier en chêne vous mène au premier étage, vous trouverez deux grandes chambres, deux espaces salles de bains et salle d'eau. Au deuxième étage vous découvrez deux autres chambres. Un grenier avec belle hauteur sous plafond de 30 m² peut être aménagé. Un sous-sol partiel de 45 m² . Une dépendance de 30 m², située au fond du jardin, offre des possibilités supplémentaires d'aménagement. Des travaux de rénovations sont à prévoir pour sublimer cette maison et en faire un véritable lieu de vie agréable. Pour plus d'informations ou pour organiser une visite, contactez-nous dès maintenant ! Monica Montoro (EI) Téléphone : [Coordonnées masquées] RSAC / 818703092 ou Delphine CLEMENT (EI) Téléphone : [Coordonnées masquées] RSAC/ 524686673 MONICA MONTORO (EI) Agent Commercial - Numéro RSAC : - .
Voir plus

Référence: 4411
Honoraires à la charge du vendeur.
DPE
A
B
C
D
E
F
G
GES
A
B
C
D
E
F
G

Prêt immobilier

Vous souhaitez connaître votre capacité d’emprunt et trouver le meilleur crédit immobilier ?
Réaliser une simulation gratuite

Maison à FONTAINEBLEAU
Maison à FONTAINEBLEAU
Maison à FONTAINEBLEAU
Maison à FONTAINEBLEAU
Maison à FONTAINEBLEAU
Maison à FONTAINEBLEAU
Maison à FONTAINEBLEAU
Maison à FONTAINEBLEAU
Maison à FONTAINEBLEAU
Maison à FONTAINEBLEAU
Maison à FONTAINEBLEAU
Maison à FONTAINEBLEAU
Ce site est protégé par reCAPTCHA la Politique de confidentialité et les Conditions d’utilisation de Google s’appliquent.
Obtenir un prêt immobilier au meilleur taux ?

En poursuivant votre navigation sans modifier vos paramètres, vous acceptez l'utilisation de cookies susceptibles de réaliser des statistiques de visite. Cliquez ici pour plus d'informations