Bénéficiez des services de nos partenaires locaux soigneusement sélectionnés
pour vous accompagner dans votre parcours d'achat immobilier

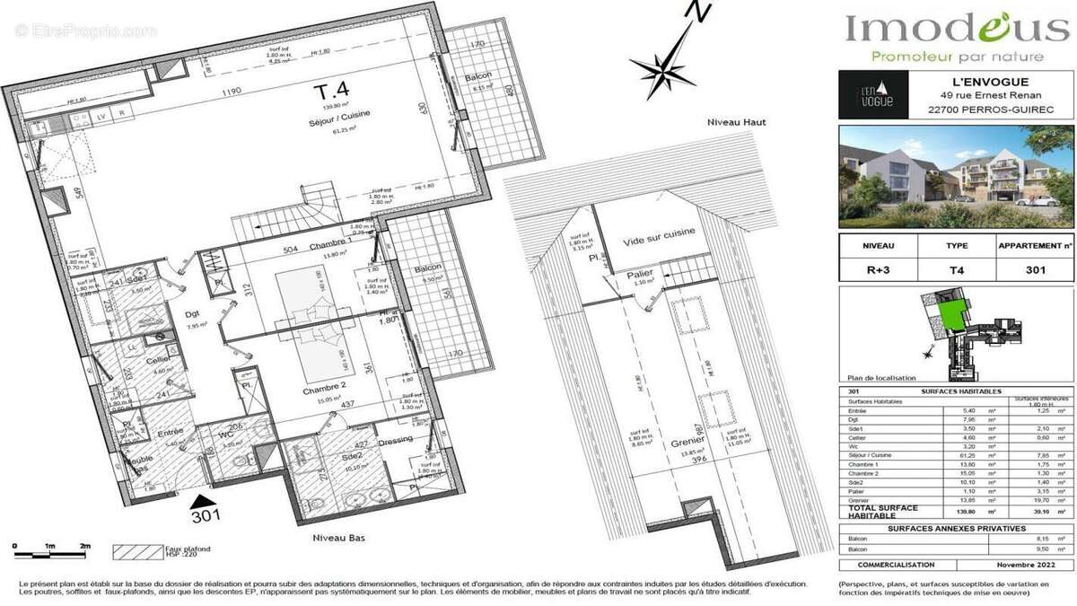
LOT N°301 - Appartement T3 " Résidence L'Envogue " à PERROS-GUIREC

— Perros-Guirec 22700 —
870 000 €
139 m²
3 pièces
parkingbalcon/terrasseascenseur

Nos partenaires locaux
PLUS QUE QUELQUES OPPORTUNITES AVANT LIVRAISON !
Vos agences ORPI TREGORIMMO et ORPI LE VOT, vous proposent au sein d'une résidence neuve, Cet appartement T4 avec grenier se situe au 3ème étage et se compose d'une entrée avec placard, un couloire desservant une pièce de vie de 61,25 m² avec cuisine aménagée ouverte sur salon-séjour et balcon, une suite parentale avec une chambre de 15,05 m², salle d'eau avec w.c attenante ainsi qu'un dressing privatif, une chambre, les deux chambres ont accès à un second balcon, une salle d'eau, un cellier et un w.c séparé ; A l'étage : un grenier. Un box privatif et une place de parking privative au sein de la copropriété sécurisée.

La résidence l'Envogue vous propose un emplacement idéal à proximité du port de PERROS-GUIREC et des commerces et restaurants, avec une architecture élégante et contemporaine qui répondra à tous vos besoins : Jardin privatif en rez-de-jardin ou une terrasse pour les niveaux supérieurs, belles expositions, une place de parking ou garage et une cave. La construction, conforme à la RT 2012 offrira à ses occupants, confort en matière d'isolation thermique et acoustique.
Contactez-nous sans plus attendre pour obtenir des renseignements sur notre programme par mail, téléphone ou dans nos agences.
Référence agence : 7283
Voir plus

Référence: 0T3J-DGS-1R1
Honoraires à la charge du vendeur.
Appartement à PERROS-GUIREC
Appartement à PERROS-GUIREC
Appartement à PERROS-GUIREC
Appartement à PERROS-GUIREC
Appartement à PERROS-GUIREC
Appartement à PERROS-GUIREC
Appartement à PERROS-GUIREC
Géorisques

Les informations sur les risques auxquels ce bien est exposé sont disponibles sur le site Géorisques : www.georisques.gouv.fr

Ce site est protégé par hCaptcha Politique de confidentialité et Conditions d’utilisation s’appliquent.

En poursuivant votre navigation sans modifier vos paramètres, vous acceptez l'utilisation de cookies susceptibles de réaliser des statistiques de visite. Cliquez ici pour plus d'informations