Bénéficiez des services de nos partenaires locaux soigneusement sélectionnés
pour vous accompagner dans votre parcours d'achat immobilier

Dpt vaucluse (84), à vendre aux imberts quartier de gordes, maison de plein pied avec 3 chambres et 1600 m2 de jardin

— Gordes 84220 —
550 000 €
123 m² / 1 600 m²
5 pièces
parkingbalcon/terrassejardin

Nos partenaires locaux
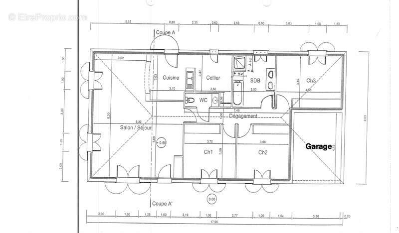
Aux Imberts, hameau de Gordes – Belle maison de plain-pied sur un terrain de 1600 m²

La maison :

Construite il y a un peu plus de 10 ans, cette maison contemporaine en pierre de Gordes allie confort moderne et charme local.

Dès l'entrée, vous accédez à une grande pièce à vivre de plus de 40 m², composée d'un salon et d'un espace salle à manger. Une cuisine aménagée et équipée complète l'ensemble, accompagnée d'un cellier fonctionnel.

Un couloir dessert la partie nuit, comprenant trois belles chambres, une spacieuse salle de bains avec double vasques, baignoire, grande douche à l'italienne, ainsi qu'un toilette indépendant.

La maison est équipée de grands carreaux en pierre au sol, climatisation dans la pièce à vivre, fibre optique, tout-à-l'égout : autant d'atouts qui en font un bien rare dans le secteur.

Petit plus : le garage a été aménagé en bureau. Il peut facilement être relié à la maison (les raccordements sont prévus) ou retrouver sa fonction initiale.



Les extérieurs :

Le terrain de 1600 m² entièrement clos, accessible via un portail, a été soigneusement aménagé pour profiter pleinement des belles journées du Luberon.
• À l'avant, orienté plein sud : une grande terrasse conviviale, idéale pour les repas en extérieur, et un jardin paysagé avec un cerisier.
• À l'arrière : une zone de stationnement en tapicette, un jardin arboré avec la possibilité d'y aménager un potager.

Le terrain est piscinable et une possibilité d'agrandissement est envisageable.



Un bien rare et polyvalent

Idéale pour une famille dynamique ou une résidence secondaire, cette maison est proche des écoles et collèges, à seulement 40 minutes d'Avignon TGV.

Un bon rendement locatif à l'année est également envisageable. Les honoraires sont à la charge du vendeur.
Les informations sur les risques auxquels ce bien est exposé sont disponibles sur le site Géorisques : www. georisques. gouv. fr.

Réseau Immobilier CAPIFRANCE - Votre agent commercial (RSAC N°853 036 648 - Greffe de AVIGNON) Yolande ZANDVLIET Entrepreneur Individuel [Coordonnées masquées] - Réf.900227
Voir plus

Référence: 340937619552
Honoraires à la charge du vendeur.
DPE
A
B
C
D
E
F
G
GES
A
B
C
D
E
F
G

Prêt immobilier

Vous souhaitez connaître votre capacité d’emprunt et trouver le meilleur crédit immobilier ?
Réaliser une simulation gratuite

Maison à GORDES
Maison à GORDES
Maison à GORDES
Maison à GORDES
Maison à GORDES
Maison à GORDES
Maison à GORDES
Maison à GORDES
Maison à GORDES
Maison à GORDES
Maison à GORDES
Maison à GORDES
Maison à GORDES
Maison à GORDES
Maison à GORDES
Maison à GORDES
Maison à GORDES
Maison à GORDES
Maison à GORDES
Maison à GORDES
Ce site est protégé par reCAPTCHA la Politique de confidentialité et les Conditions d’utilisation de Google s’appliquent.
Obtenir un prêt immobilier au meilleur taux ?

En poursuivant votre navigation sans modifier vos paramètres, vous acceptez l'utilisation de cookies susceptibles de réaliser des statistiques de visite. Cliquez ici pour plus d'informations