Bénéficiez des services de nos partenaires locaux soigneusement sélectionnés
pour vous accompagner dans votre parcours d'achat immobilier

Voir tous les partenaires locaux

Villa Individuelle + studio indépendant

— Nice 06000 —
299 900 €
100 m²
4 pièces

Nos partenaires locaux
Votre cuisiniste
Un accompagnement premium par des expertes, pour un projet sur mesure en toute sérénité.
04 97 13 82 86 ou cliquez-ici
Votre architecte local
Rénovation, création sur mesure et agrandissement : à vos cotés pour les professionnels & particuliers. Contact au :
06 80 55 27 16 ou cliquez-ici
Votre déménagement/débarras
On déménage, on débarrasse, vous respirez. Intervention rapide et efficace. Une équipe efficace à votre service
06 22 28 85 10 ou cliquez-ici
Votre rénovation énergétique
Cozynergy réalise vos travaux de rénovation énergétique, clé en main et aides déduites. Simulez votre projet ici :
cliquez-ici
Votre référent en crédit
Crédit longue durée jusqu'à 95 ans fin de prêt- crédit à 110% avec frais de notaire et frais de garantie. Contact au :
06 28 53 39 92 ou cliquez-ici
Votre cuisiniste référent
Contactez nous pour vos projets de cuisine sur mesure, salles de bains et de dressing entièrement personnalisés...
0497148395 ou cliquez-ici

Voir tous les partenaires locaux

Nice Madeleine
Au calme en position dominante ( accès par une cinquantaine d'escaliers).
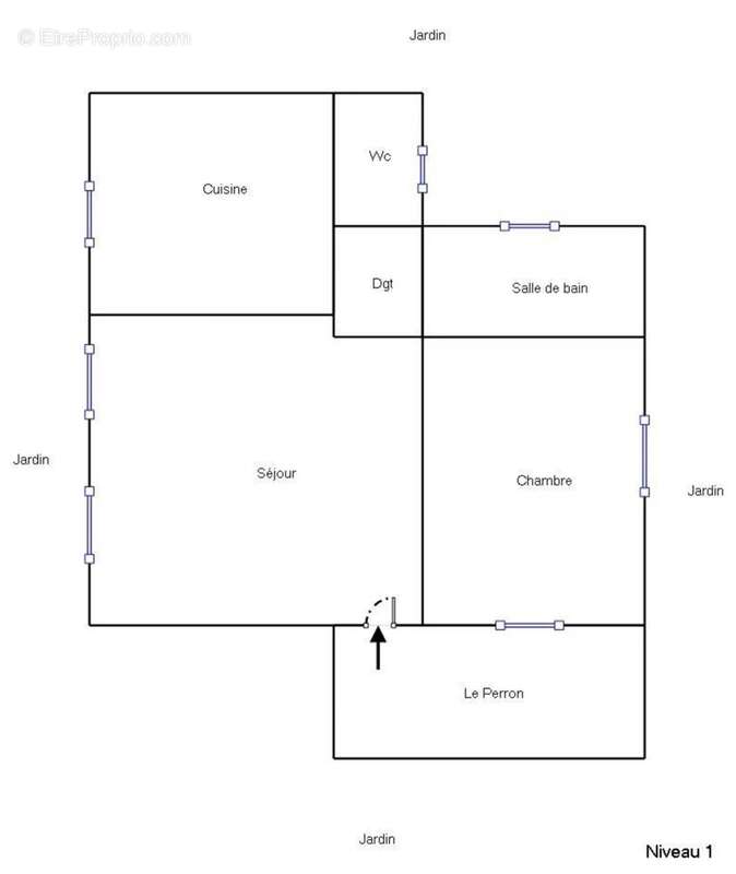
Villa de 100,83m² composée au rez de chaussée: Grand séjour, immense chambre, salle de bains, wc indépendant, cuisine indépendante. Possibilité d'exploiter les combles pour rangements.
Pas de mur porteur, laissant possible la reconfiguration de l'espace comme bon vous semblera. Toutes les pièces donnent sur les espaces extérieurs.
Au niveau -1 avec accés indépendant, un studio de 20m² qui donne sur sa propre terrasse.
Parcelle de 500m², jardin entièrement plat.
Nombreuses possibilités tant à l'intérieur qu'à l’extérieur avec extension de terrasses possible.

EXCLUSIVITE

Infos et visites avec Julia: [Coordonnées masquées] ou Julien au [Coordonnées masquées]
Voir plus

Référence: 85754032
DPE
A
B
C
D
E
F
G
GES
A
B
C
D
E
F
G
Maison à NICE
Maison à NICE
Maison à NICE
Maison à NICE
Maison à NICE
Maison à NICE
Maison à NICE
Maison à NICE
Maison à NICE
Maison à NICE
Maison à NICE
Maison à NICE
Maison à NICE
Maison à NICE
Géorisques

Les informations sur les risques auxquels ce bien est exposé sont disponibles sur le site Géorisques : www.georisques.gouv.fr

Ce site est protégé par hCaptcha Politique de confidentialité et Conditions d’utilisation s’appliquent.