Appartement

— Nice 06200 —
289 500 €
46 m²
2 pièces

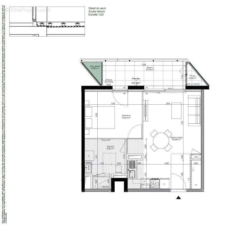
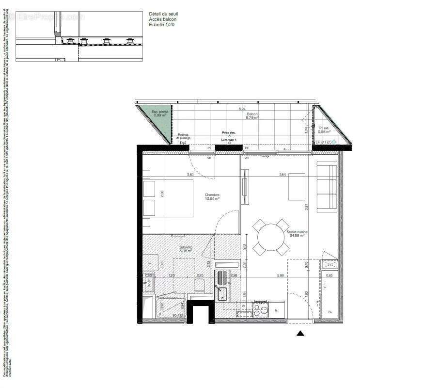
Appartement T2 Neuf Écoquartier Nice Méridia Situé au cœur du quartier innovant de Nice Méridia, au sein de la résidence emblématique OASIS, ce superbe T2 de standing offre un cadre de vie unique, à la fois contemporain, écologique et lumineux. L'appartement, orienté plein nord, se compose de : Un séjour spacieux prolongé par une cuisine ouverte, baigné de lumière grâce aux grandes baies vitrées orientées nord, Une chambre confortable avec placard intégré, Une salle d'eau moderne équipée d'une douche à l'italienne, Un balcon de 9 m2 offrant une vue dégagée sur les jardins paysagers de la résidence, Deux places de stationnement en sous-sol. La résidence OASIS, signée par des architectes de renom (KOZ, Comte & Vollenweider, S. Fernandez), se distingue par : Son architecture bois et verre résolument contemporaine, Des performances énergétiques élevées (certifications BBCA et HQE), Des espaces végétalisés en toiture et en façades, Une ambiance sereine et naturelle en pleine ville, Un emplacement idéal à proximité du tramway, de la future coulée verte et des services du quartier Grand Arénas. Arrêt « Méridia » de la nouvelle ligne T3 du tramway à 300 m* qui relie l'aéroport Nice Côte d'Azur au cœur historique de la ville Idéal pour un premier achat, un investissement locatif ou un pied-à-terre moderne à Nice. Contactez-nous pour visiter ce bien rare dans l'un des projets les plus innovants de la Côte d'Azur.
Voir plus

Référence: 12030370270
DPE
A
B
C
D
E
F
G

Prêt immobilier

Vous souhaitez connaître votre capacité d’emprunt et trouver le meilleur crédit immobilier ?
Réaliser une simulation gratuite

Appartement à NICE
Appartement à NICE
Appartement à NICE
Appartement à NICE
Appartement à NICE
Appartement à NICE
Ce site est protégé par reCAPTCHA la Politique de confidentialité et les Conditions d’utilisation de Google s’appliquent.
Obtenir un prêt immobilier au meilleur taux ?

En poursuivant votre navigation sans modifier vos paramètres, vous acceptez l'utilisation de cookies susceptibles de réaliser des statistiques de visite. Cliquez ici pour plus d'informations