Bénéficiez des services de nos partenaires locaux soigneusement sélectionnés
pour vous accompagner dans votre parcours d'achat immobilier

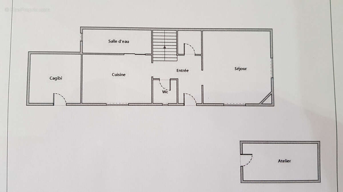
*** RARE A LA VENTE *** - Maison en pierre de Meulière 49 m² habitable sur une surface de 72 m² au sol avec 3 pièces - 2 CH

— Vanves 92170 —
470 000 €
72 m² / 150 m²
3 pièces
parkingjardin

Nos partenaires locaux
*** RARE A LA VENTE *** - Maison en pierre de Meulière de 49 m² habitable avec une surface de 72 m² au sol (hors combles) sur un terrain de 150 m² (le long de la voie ferrée) comprenant : 3 pièces avec 2 chambres et son jardin clos de 100 m2 au calme. *** idéalement située sur la commune de VANVES, proche commerces et transports Gare (5mn à pieds), bus (5mn), métro L13 (20mn) une maison de caractère vous offrant en rez-de-chaussée surélevé : Une entrée distribuant : un séjour avec cheminée d'époque, parquet en chêne, une cuisine, une salle d'eau. WC séparé. Au premier étage : 2 chambres indépendantes ( 11,42 m2, 8,90 m2), W.C. , dressing. Les combles sont aménageables!. Un sous-sol partiel semi-enterré. L'ensemble à rénover. Chauffage au fuel et eau chaude sanitaire électrique. En rez-de-jardin un local cagibi (vélo/buanderie) et un cabanon (atelier) complètent cet écrin de tranquillité.. Franck MOUTON (EI) Agent Commercial - Numéro RSAC : 429016637 - Nanterre.
Voir plus

Honoraires d'agence de 4.44% à la charge de l'acquéreur
Barème des honoraires
DPE
A
B
C
D
E
F
G
GES
A
B
C
D
E
F
G
Maison à VANVES
Maison à VANVES
Maison à VANVES
Maison à VANVES
Maison à VANVES
Maison à VANVES
Maison à VANVES
Maison à VANVES
Maison à VANVES
Maison à VANVES
Maison à VANVES
Maison à VANVES
Maison à VANVES
Maison à VANVES
Maison à VANVES
Maison à VANVES
Géorisques

Les informations sur les risques auxquels ce bien est exposé sont disponibles sur le site Géorisques : www.georisques.gouv.fr

Ce site est protégé par hCaptcha Politique de confidentialité et Conditions d’utilisation s’appliquent.

En poursuivant votre navigation sans modifier vos paramètres, vous acceptez l'utilisation de cookies susceptibles de réaliser des statistiques de visite. Cliquez ici pour plus d'informations