Bénéficiez des services de nos partenaires locaux soigneusement sélectionnés
pour vous accompagner dans votre parcours d'achat immobilier

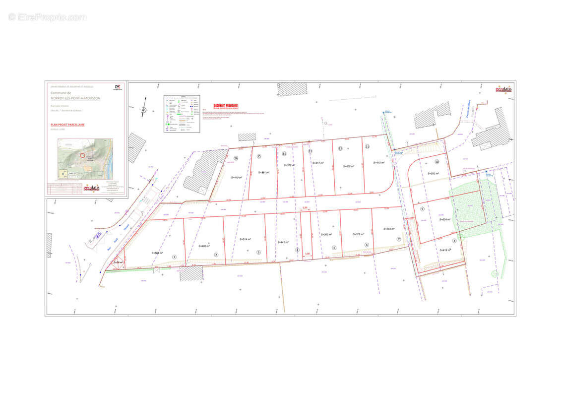
Lotissement

— Norroy-Les-Pont-A-Mousson 54700 —
85 000 €
419 m²
jardin

Nos partenaires locaux
Magnifique parcelle libre de constructeur sur un lotissement au coeur de la nature, calme et proche de toute commodités.
Largeur de façade: 14.20m.
Lot no8.
Les informations sur les risques auxquels ce bien est exposé sont disponibles sur le site Géorisques : www.georisques.gouv.fr

Référence: 20211440-8
Honoraires d'agence de 6.25% à la charge de l'acquéreur
Barème des honoraires

Prêt immobilier

Vous souhaitez connaître votre capacité d’emprunt et trouver le meilleur crédit immobilier ?
Réaliser une simulation gratuite

Terrain à NORROY-LES-PONT-A-MOUSSON
Terrain à NORROY-LES-PONT-A-MOUSSON
Terrain à NORROY-LES-PONT-A-MOUSSON
Terrain à NORROY-LES-PONT-A-MOUSSON
Ce site est protégé par reCAPTCHA la Politique de confidentialité et les Conditions d’utilisation de Google s’appliquent.
Obtenir un prêt immobilier au meilleur taux ?

En poursuivant votre navigation sans modifier vos paramètres, vous acceptez l'utilisation de cookies susceptibles de réaliser des statistiques de visite. Cliquez ici pour plus d'informations