Sublime corp de ferme a saisir

— Hucqueliers 62650 —
225 000 €
170 m² / 4 280 m²
7 pièces
parkingbalcon/terrasse

Proche Hucqueliers 62
Secteur non inondable.

Coup de cœur assuré pour les amateurs de vieilles pierres, un charme incroyable!
À saisir rapidement, cette propriété est idéale pour un artisan, une grande famille ou tout projets de gîtes.

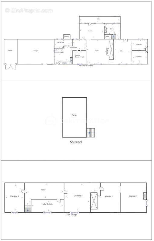
Corps de ferme de 7 pièces d'environ 170m2, offrant un grand potentiel.

À l'intérieur, vous trouverez un magnifique séjour, vous serez séduit par les belles poutres apparentes, un salon séparé, une cuisine équipée avec une grande arrière-cuisine, un WC ainsi que 3 chambres au rez-de-chaussée.

À l'étage, deux belles chambres, une salle de bain, avec Wc, un beau couloir et des combles aménageables.
Les amateurs de belles poutres seront séduits par leur magnificence.

À l'extérieur, un terrain de plus de 4280m2 avec des arbres fruitiers et sans vis-à-vis.
Vous découvrirez également
un immense hangar en dure de plus de 200m2, offrant de nombreuses possibilités d'aménagement, ainsi que plusieurs petites dépendances supplémentaires et un grand garage.

Ne manquez pas la belle cave voûtée, idéale pour les amateurs de bons vins.

Cette construction solide d'antan est rare sur le marché.
Le chauffage est assuré par un poêle à pellets
et une cheminée à insert, avec un DPE de classe E facilement améliorable.

Passionnés de charme authentique il faut faire vite!
Cette propriété offre un cadre idéal pour laisser libre cours à votre imagination et réaliser tous vos projets.
N'hésitez pas à visiter cette demeure pleine de caractère et de potentiel, elle saura vous séduire par ses nombreux atouts.

Contactez-moi dès maintenant pour organiser une visite et saisir cette
opportunité unique sur le marché immobilier.

Cette annonce référence 244953 vous est présentée par votre agent commercial BSK Immobilier JULIEN SEILLIER (EI) immatriculé au RSAC de BOULOGNE-SUR-MER (62200) sous le numéro 92112024200018.

Prix du bien : 225 000,00 €
Les honoraires d'agence sont à la charge du vendeur.

A propos des performances énergétiques :
Date de réalisation du diagnostic énergétique : 28/03/2023
Score DPE : 280 kWhEP/m²/an
Score GES : 9 kgepCO2/m²/an
Montant estimé des dépenses annuelles d'énergie pour un usage standard : entre 2500.00 € et 3420.00 € par an. Prix moyens des énergies indexés sur l'année 2021 (abonnements compris).

Les informations sur les risques auxquels ce bien est exposé sont disponibles sur le site Géorisques : www.georisques.gouv.fr
Voir plus

Référence: 244953
Honoraires à la charge du vendeur.
DPE
A
B
C
D
E
F
G
GES
A
B
C
D
E
F
G

Prêt immobilier

Vous souhaitez connaître votre capacité d’emprunt et trouver le meilleur crédit immobilier ?
Réaliser une simulation gratuite

Maison à HUCQUELIERS
Maison à HUCQUELIERS
Maison à HUCQUELIERS
Maison à HUCQUELIERS
Maison à HUCQUELIERS
Maison à HUCQUELIERS
Maison à HUCQUELIERS
Maison à HUCQUELIERS
Maison à HUCQUELIERS
Maison à HUCQUELIERS
Maison à HUCQUELIERS
Maison à HUCQUELIERS
Maison à HUCQUELIERS
Maison à HUCQUELIERS
Maison à HUCQUELIERS
Maison à HUCQUELIERS
Maison à HUCQUELIERS
Maison à HUCQUELIERS
Maison à HUCQUELIERS
Maison à HUCQUELIERS
Maison à HUCQUELIERS
Maison à HUCQUELIERS
Maison à HUCQUELIERS
Maison à HUCQUELIERS
Maison à HUCQUELIERS
Maison à HUCQUELIERS
Maison à HUCQUELIERS
Maison à HUCQUELIERS
Maison à HUCQUELIERS
Ce site est protégé par reCAPTCHA la Politique de confidentialité et les Conditions d’utilisation de Google s’appliquent.
Obtenir un prêt immobilier au meilleur taux ?

En poursuivant votre navigation sans modifier vos paramètres, vous acceptez l'utilisation de cookies susceptibles de réaliser des statistiques de visite. Cliquez ici pour plus d'informations