Bénéficiez des services de nos partenaires locaux soigneusement sélectionnés
pour vous accompagner dans votre parcours d'achat immobilier

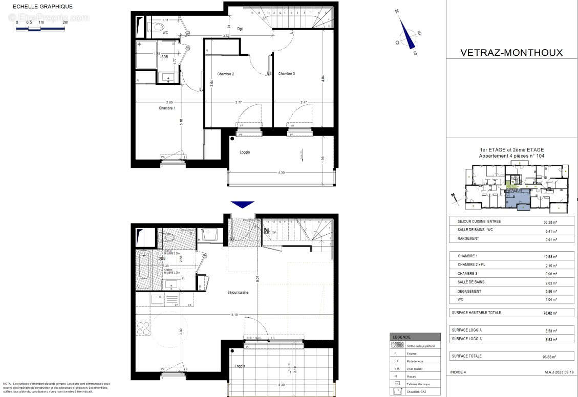
Duplex t4 de 79.9 m² au 1er étage - vétraz monthoux

— Vetraz-Monthoux 74100 —
464 000 €
80 m²
4 pièces
ascenseur

Nos partenaires locaux
A vendre, sur la commune très prisée de Vétraz-Monthoux, dans une petite résidence intimiste et sécurisée, aux lignes contemporaines, magnifique duplex T4 de 79.9 m² situé au 1er étage. Cet appartement se compose d'une entrée avec placard, d'un spacieux et lumineux séjour/cuisine de 33.28 m² donnant sur une loggia de 8.53 m² exposée Sud et d'une salle de bains avec wc suspendu. A l'étage, on retrouve 3 chambres dont deux avec placards, une salle de bains, un wc suspendu et une deuxième loggia de 8.53m² exposée Sud. Une cave et un garage sont également compris dans le prix. RE 2020, Ascenseur, local vélos et proche livraisons. Quelques lots sont encore disponibles. N'hésitez pas à contacter voter Agence Immobilière IMMO 3CONCEPT
Voir plus

Barème des honoraires

Prêt immobilier

Vous souhaitez connaître votre capacité d’emprunt et trouver le meilleur crédit immobilier ?
Réaliser une simulation gratuite

Appartement à VETRAZ-MONTHOUX
Appartement à VETRAZ-MONTHOUX
Appartement à VETRAZ-MONTHOUX
Appartement à VETRAZ-MONTHOUX
Ce site est protégé par reCAPTCHA la Politique de confidentialité et les Conditions d’utilisation de Google s’appliquent.
Obtenir un prêt immobilier au meilleur taux ?

En poursuivant votre navigation sans modifier vos paramètres, vous acceptez l'utilisation de cookies susceptibles de réaliser des statistiques de visite. Cliquez ici pour plus d'informations