Bénéficiez des services de nos partenaires locaux soigneusement sélectionnés
pour vous accompagner dans votre parcours d'achat immobilier

Vente plateau de bureaux 330m2 voiron

— Voiron 38500 —
819 427 €
330 m²

Nos partenaires locaux
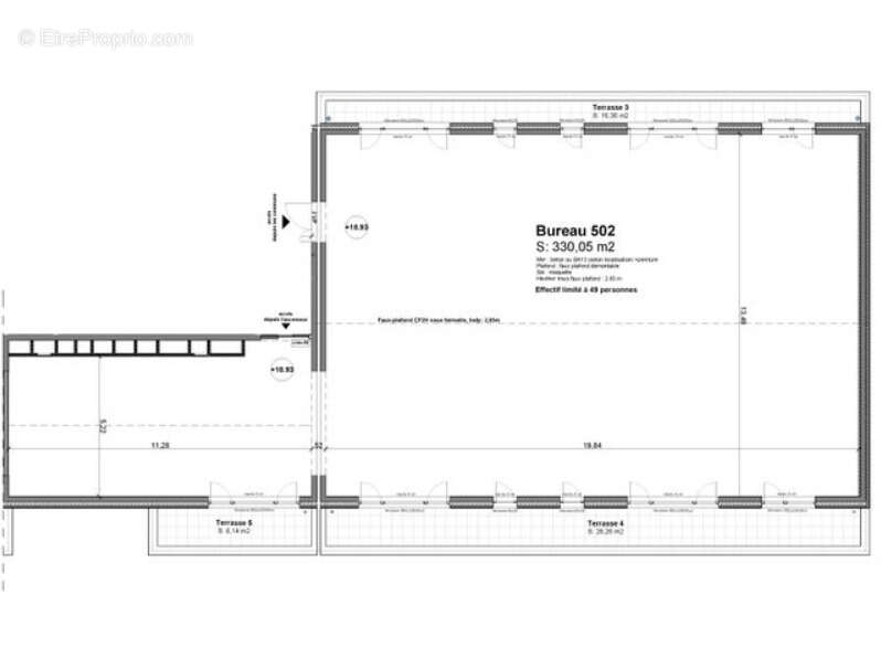
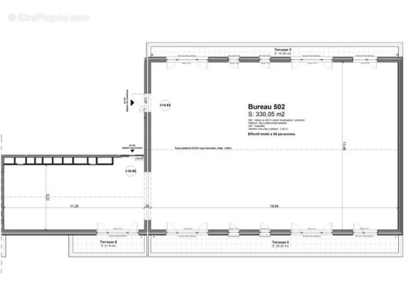
A Voiron, ville dynamique située entre Lyon et Grenoble, 40mn de l'aéroport de Lyon Saint-Exupéry, nous vous proposons un plateau de bureaux de 330m2 à la vente.
Le local est situé au 5eme étage d'un ensemble immobilier récent et propose en plus de son plateau brut, 3 terrasses de 8, 16 et 24 m2 avec vue Montagne pour une qualtié de travail inégalable.
Plateau à aménager, idéal pour investisseur, entreprise qui souhaite s'implanter dans un bassin en plein essor.
Tout commerce, restauration à proximité.
Gare SNCF à 3mn à pied.
Le local est disponible avec 4 places de parking privatives (1 en sous-sol et 3 extérieures). Parking en foisonnement en plus.
Prix TTC de 819427€ honoraires agence inclus.
Pour tout renseignement complémentaire et visite, merci de contacter Rachel Beaugendre au O6 52 50 62 26, agent commercial indépendante immatriculée au RSAC d'ANNECY.
Voir plus

Barème des honoraires

Prêt immobilier

Vous souhaitez connaître votre capacité d’emprunt et trouver le meilleur crédit immobilier ?
Réaliser une simulation gratuite

Commerce à VOIRON
Commerce à VOIRON
Commerce à VOIRON
Ce site est protégé par reCAPTCHA la Politique de confidentialité et les Conditions d’utilisation de Google s’appliquent.
Obtenir un prêt immobilier au meilleur taux ?

En poursuivant votre navigation sans modifier vos paramètres, vous acceptez l'utilisation de cookies susceptibles de réaliser des statistiques de visite. Cliquez ici pour plus d'informations