Bénéficiez des services de nos partenaires locaux soigneusement sélectionnés
pour vous accompagner dans votre parcours d'achat immobilier

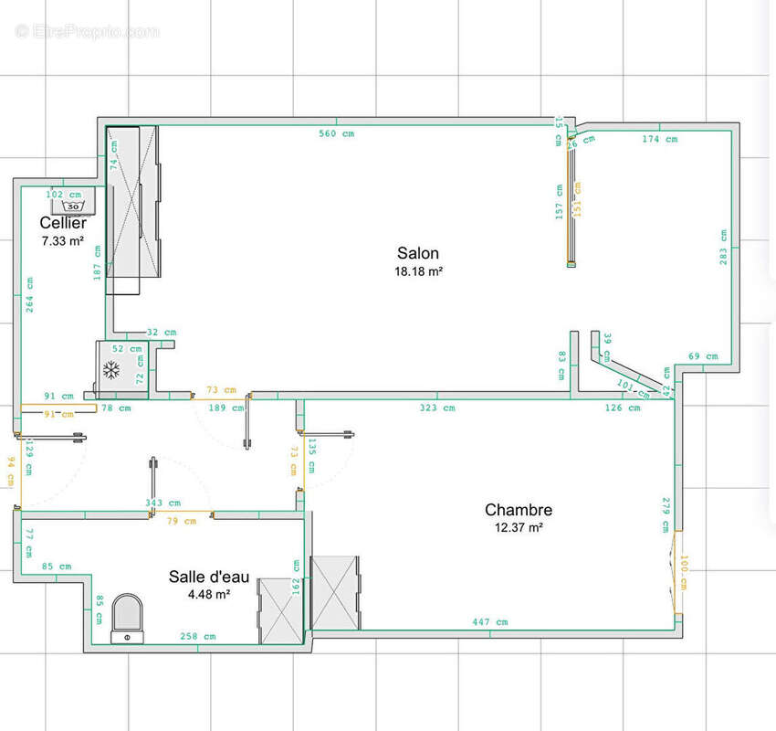
Appartement 42m² à bègles

— Begles 33130 —
168 000 €
43 m²
2 pièces
parking

Nos partenaires locaux
Bègles -Vaclav Havel : Appartement T2 avec balcon
Situé au 5e étage d'une résidence récente et sécurisée, cet appartement deux pièces offre un agencement fonctionnel sans perte d'espace. Il se compose d'un séjour avec cuisine ouverte, d'une chambre, d'une salle d'eau avec WC. Vous profiterez également d'un large balcon. Un cellier sur le palier et une place de stationnement complètent l'ensemble.
A VOIR SANS TARDER!
L'Etat des Risques et Pollution peut être consulté sur https://www.georisques.gouv.fr
Voir plus

Référence: 3951
DPE
A
B
C
D
E
F
G
GES
A
B
C
D
E
F
G

Prêt immobilier

Vous souhaitez connaître votre capacité d’emprunt et trouver le meilleur crédit immobilier ?
Réaliser une simulation gratuite

Appartement à BEGLES
Appartement à BEGLES
Appartement à BEGLES
Appartement à BEGLES
Appartement à BEGLES
Appartement à BEGLES
Appartement à BEGLES
Ce site est protégé par reCAPTCHA la Politique de confidentialité et les Conditions d’utilisation de Google s’appliquent.
Obtenir un prêt immobilier au meilleur taux ?

En poursuivant votre navigation sans modifier vos paramètres, vous acceptez l'utilisation de cookies susceptibles de réaliser des statistiques de visite. Cliquez ici pour plus d'informations