Bénéficiez des services de nos partenaires locaux soigneusement sélectionnés
pour vous accompagner dans votre parcours d'achat immobilier

Vente t4 (77 m2) dans le 13e arrondissement de marseille - facultés

— Marseille-13e 13013 —
272 718 €
77 m²
4 pièces
parkingbalcon/terrasse

Nos partenaires locaux
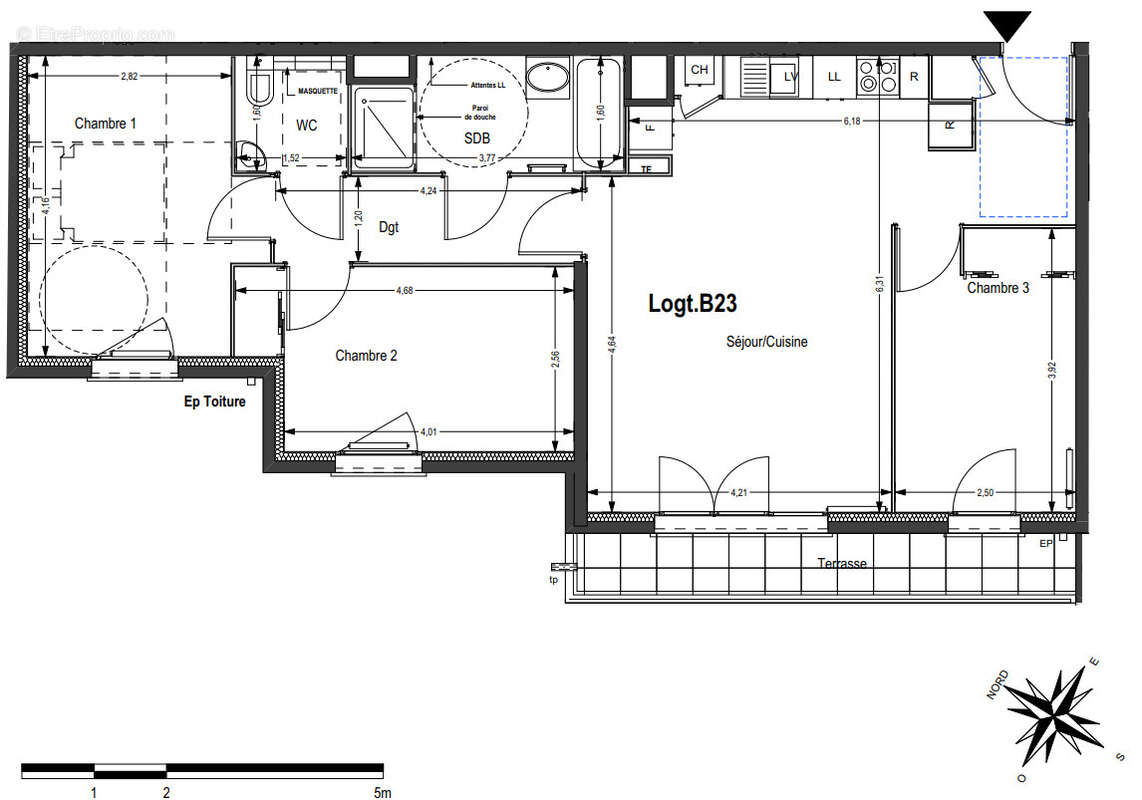
APPARTEMENT 4 PIÈCES AVEC TERRASSE - 2ème étage / 3 PRADO-EUROMED IMMOBILIER vous propose ce bel appartement de 77 m2 avec terrasse, au 2è étage d'un immeuble de 2024 proche de la faculté St Jérôme, dans une rue calme. Orienté Ouest, il est composé d'un salon avec cuisine ouverte, 3 chambres, dont 2 donnant sur la terrasse, 1 salle de bain avec baignoire et douche, d'un WC indépendant. 2 places de parking en sous-sol sont inclus dans le prix. Carrelage au sol dans toutes les pièces Chauffage individuel électrique Aucun travaux à prévoir, en dehors de la cuisine à équiper
Envie d'en savoir plus sur cet appartement en vente ? Prenez contact avec votre agent : Gérard MOUGENOT [Coordonnées masquées] [Coordonnées masquées] - (EI) - RSAC 434199063 ou Ouahib MEDDOUN [Coordonnées masquées] [Coordonnées masquées] EI - RSAC 378164149 - Les informations concernant les risques liés à ce bien sont disponibles sur georisques.gouv.fr. - Présentation d'une pièce d'identité requise selon l'article L.561.5 du Code Monétaire et Financier pour l'organisation de la visite. - Les informations concernant les risques liés à ce bien sont disponibles sur georisques.gouv.fr.- Présentation d'une pièce d'identité requise selon l'article L.561.5 du Code Monétaire et Financier pour l'organisation de la visite.
Voir plus

Référence: PP - 3224 - B23
Honoraires à la charge du vendeur.
Barème des honoraires

Prêt immobilier

Vous souhaitez connaître votre capacité d’emprunt et trouver le meilleur crédit immobilier ?
Réaliser une simulation gratuite

Appartement à MARSEILLE-13E
Appartement à MARSEILLE-13E
Appartement à MARSEILLE-13E
Appartement à MARSEILLE-13E
Appartement à MARSEILLE-13E
Appartement à MARSEILLE-13E
Appartement à MARSEILLE-13E
Appartement à MARSEILLE-13E
Appartement à MARSEILLE-13E
Appartement à MARSEILLE-13E
Ce site est protégé par reCAPTCHA la Politique de confidentialité et les Conditions d’utilisation de Google s’appliquent.
Obtenir un prêt immobilier au meilleur taux ?

En poursuivant votre navigation sans modifier vos paramètres, vous acceptez l'utilisation de cookies susceptibles de réaliser des statistiques de visite. Cliquez ici pour plus d'informations