Bénéficiez des services de nos partenaires locaux soigneusement sélectionnés
pour vous accompagner dans votre parcours d'achat immobilier

Dinard: Maison de 89m² avec garage sur jardin clos de 353m². 4 chambres. plages et commerces à 15 minutes à pied

— Dinard 35800 —
418 000 €
89 m² / 353 m²
5 pièces
parkingbalcon/terrassejardin

Nos partenaires locaux
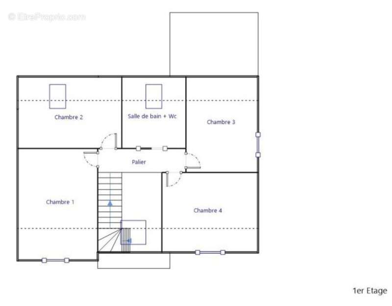
Dinard: Maison de 89m² avec garage sur jardin clos de 353m². 4 chambres. plages et commerces à 15 minutes à pied.
Idéale comme résidence secondaire ou principale, visitez cette jolie maison au calme dans son jardin clos. Entrée, placard, séjour double avec possibilité d'une cheminée, cuisine semi équipée ouverte sur séjour et en direct avec son garage et la buanderie. Sanitaires.1er étage, palier desservant 3 chambres et un bureau à usage de chambre. Salle d'eau et wc.
Située dans un quartier résidentiel et au calme, profitez des plages, sentiers pédestres de notre charmante cité balnéaire.
Dinard est pourvue d'un Casino, d'un golf réputé et d'écoles de voiles.
Les bus facilitent les transports vers la gare de St Malo et les pistes cyclables les balades dans notre jolie ville à l'échelle humaine par sa petite taille de 7.6km².
Dossier sur demande, visite à distance possible.
Les honoraires d'agence sont à la charge de l'acquéreur, soit 4,50% TTC du prix hors honoraires.
Les informations sur les risques auxquels ce bien est exposé sont disponibles sur le site Géorisques : www. georisques. gouv. fr.

Contactez Marie-Claude HEMERY Entrepreneur Individuel, Agent commercial OptimHome (RSAC N°530 037 860 Greffe de SAINT MALO) [Coordonnées masquées] (réf. 584297 )
Voir plus

Référence: 830038434923
DPE
A
B
C
D
E
F
G
GES
A
B
C
D
E
F
G
Maison à DINARD
Maison à DINARD
Maison à DINARD
Maison à DINARD
Maison à DINARD
Maison à DINARD
Maison à DINARD
Maison à DINARD
Maison à DINARD
Maison à DINARD
Maison à DINARD
Maison à DINARD
Maison à DINARD
Géorisques

Les informations sur les risques auxquels ce bien est exposé sont disponibles sur le site Géorisques : www.georisques.gouv.fr

Ce site est protégé par hCaptcha Politique de confidentialité et Conditions d’utilisation s’appliquent.

En poursuivant votre navigation sans modifier vos paramètres, vous acceptez l'utilisation de cookies susceptibles de réaliser des statistiques de visite. Cliquez ici pour plus d'informations