Bénéficiez des services de nos partenaires locaux soigneusement sélectionnés
pour vous accompagner dans votre parcours d'achat immobilier

Cannes - proche centre - vaste 3 pièces style bourgeois, balcons, beaux volumes.

— Cannes 06400 —
580 000 €
88 m²
3 pièces
balcon/terrasse

Nos partenaires locaux
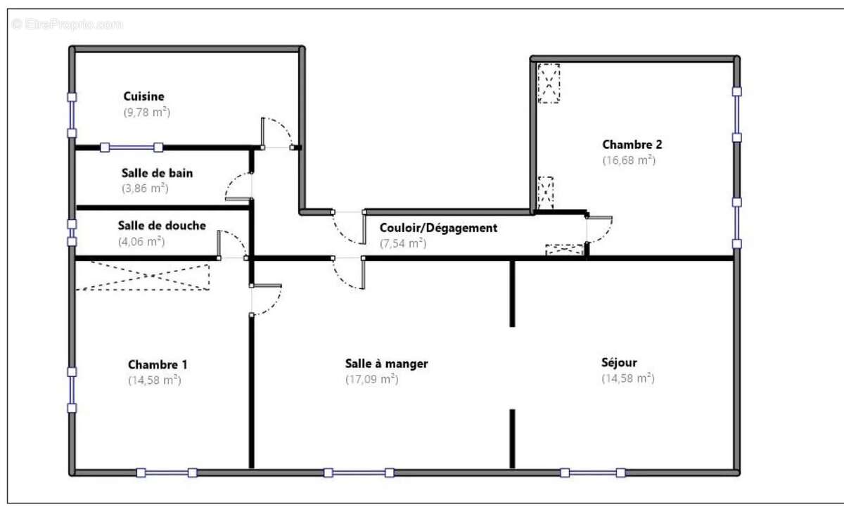
A pied du centre-ville et de toutes commodités, bel appartement style bourgeois de 88 m2, en parfait état, avec balcons dans petite copropriété avec possibilité de louer un box fermé à proximité via notre agence.

Très lumineux grâce à sa triple exposition, il se compose d'un double séjour / salle à manger, de deux belles chambres dont une en suite avec salle d'eau, d'une deuxième salle de bains et d'une cuisine indépendante.

Equipé de climatisation, l'appartement offre de beaux volumes, de la hauteur sous plafond avec rosaces et corniches , de larges fenêtres et des balcons. Seul appartement sur le palier, il se situe au premier étage d'une charmante maison de ville. Cave

Vous accéderez au centre-ville, au Palais des Congrès, aux plages et au marché Forville en quelques minutes à pied tout en étant au calme. Parking (Vauban, Ferrage) et stationnements publics dans la rue. Plusieurs crèches et écoles accessibles en quelques minutes.

Ce bien peut être un très bel investissement locatif ou une résidence principale / secondaire des plus agréables.

******* Bien en copropriété avec 12 lots dont 7 lots principaux. Quote-part des charges 565 euros/trimestre, chauffage collectif inclus. Aucune procédure connue en cours.

Les informations sur les risques auxquels ce bien est exposé sont disponibles sur le site Géorisques : georisques.gouv.fr
Voir plus

Référence: ARM-1040-AC
Barème des honoraires
DPE
A
B
C
D
E
F
G
GES
A
B
C
D
E
F
G

Prêt immobilier

Vous souhaitez connaître votre capacité d’emprunt et trouver le meilleur crédit immobilier ?
Réaliser une simulation gratuite

Appartement à CANNES
Appartement à CANNES
Appartement à CANNES
Appartement à CANNES
Appartement à CANNES
Appartement à CANNES
Appartement à CANNES
Appartement à CANNES
Appartement à CANNES
Appartement à CANNES
Appartement à CANNES
Appartement à CANNES
Appartement à CANNES
Appartement à CANNES
Appartement à CANNES
Ce site est protégé par reCAPTCHA la Politique de confidentialité et les Conditions d’utilisation de Google s’appliquent.
Obtenir un prêt immobilier au meilleur taux ?

En poursuivant votre navigation sans modifier vos paramètres, vous acceptez l'utilisation de cookies susceptibles de réaliser des statistiques de visite. Cliquez ici pour plus d'informations